Площадь
153 м2
Спален
3
Размер
11х14 м
Этажность
1
Время на строительство: 2 месяца
Стоимость от:
₽
Бесплатный выезд специалиста
ПодробнееОписание
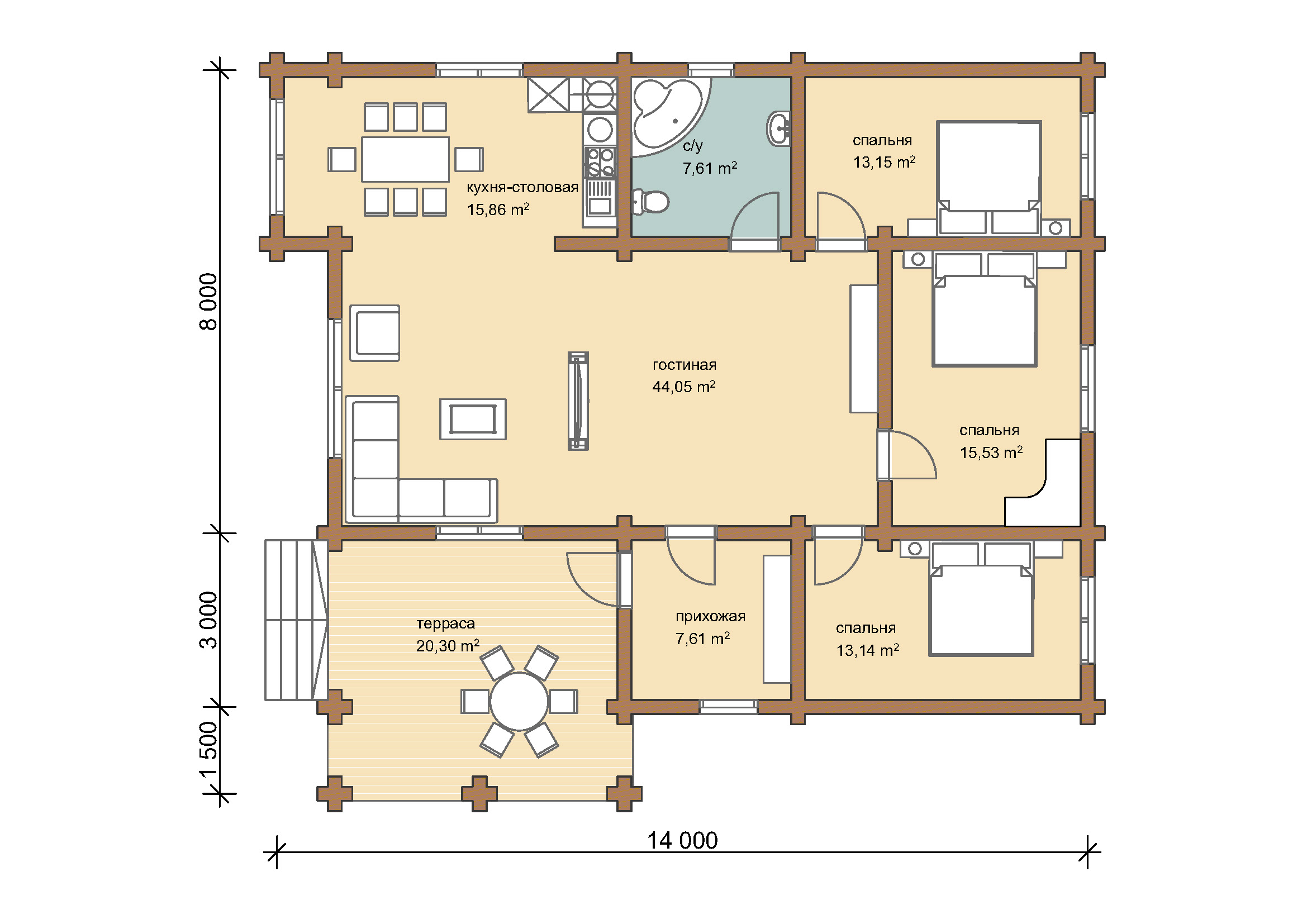
Проект одноэтажного дома размером 11 на 14, на 4 комнаты с большой террасой «Владимир».
В качестве строительного материала используется клееный или профилированный брус, сечением от 140*140 до 190*190мм.
Общая площадь дома составляет 153 м2, а общая жилая площадь проекта меньше и составляет 131 м2.
Это идеальное жилое строение из бруса, для небольшой семьи, имеющее удобную, хорошо продуманную планировку. Все комнаты раздельные, большой санузел с ванной, кухня и достаточно просторная гостиная, есть небольшая, но уютная терраса для комфортного отдыха членов семьи. В проекте этого дома две небольших, но уютные спальни и большой просторный кабинет.
По вашему желанию возможна бесплатная доработка проекта, под ваш запрос.
Хотите заказать такой проект?
Или заполните форму и мы ответим на все Ваши вопросы!








