Описание
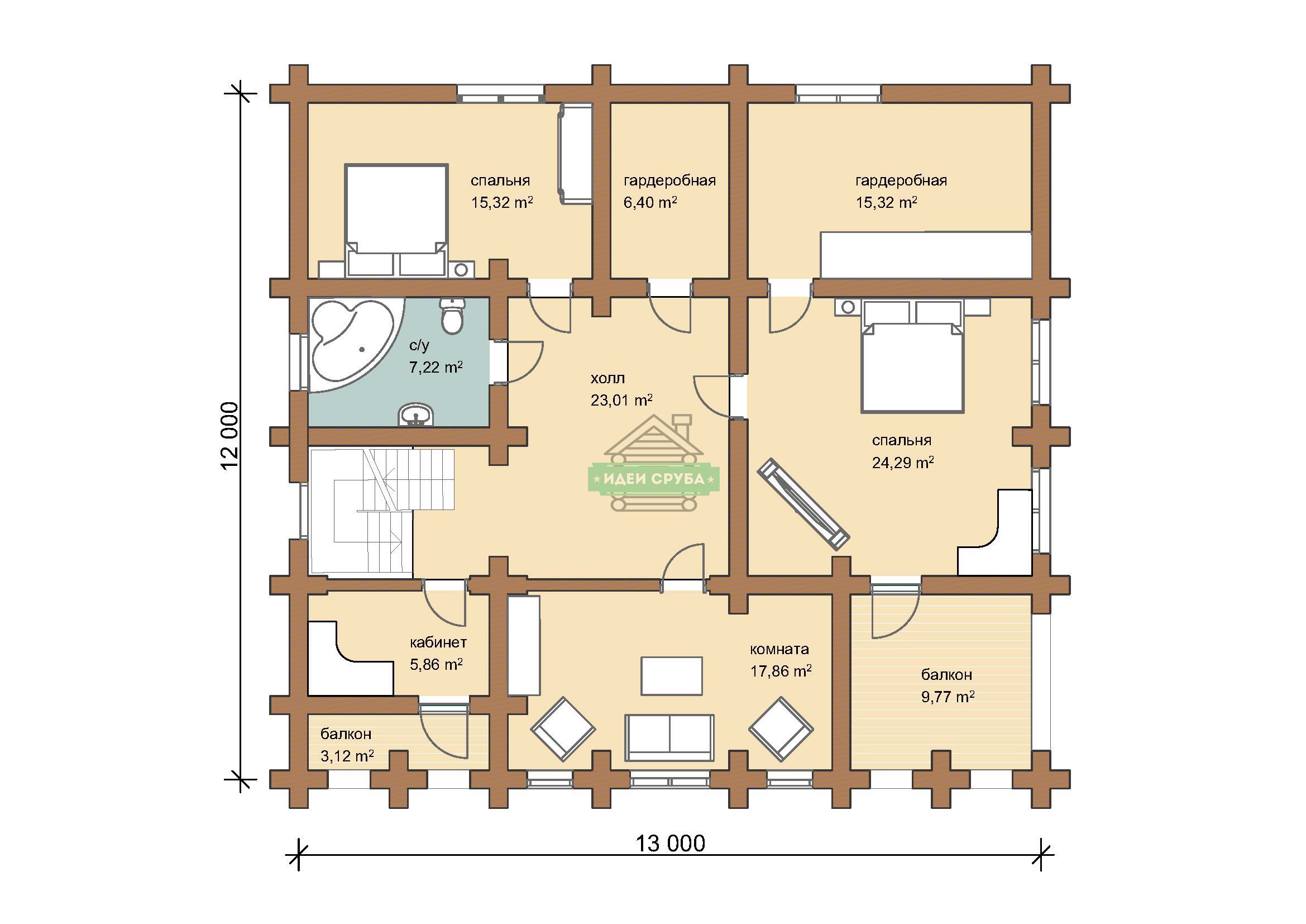
Проект «Вдохновение» — это прекрасное сочетание комфорта и современного дизайна. С этим домом вы получите просторное жилое пространство на двух этажах общей площадью 265 квадратных метров.
Внутренний дизайн включает четыре уютные комнаты, где вы сможете создать комфортные зоны для своей семьи.
Дом имеет собственный фундамент, что гарантирует его долговечность и надёжность. Временная кровля защитит ваше жильё от непогоды во время строительства.
Кроме того, в «Домодедово» вы найдёте прекрасные дополнительные преимущества: террасу для отдыха на свежем воздухе, котельную для обеспечения теплом вашего дома и мансарду для дополнительного пространства и хранения.
Этот дом — идеальный выбор для тех, кто ценит качество, комфорт и современный стиль. С проектом «Вдохновение» вы сможете осуществить свою мечту о доме.
Хотите заказать такой проект?
Или заполните форму и мы ответим на все Ваши вопросы!








