Площадь
230 м2
Спален
4
Размер
18x13 м
Этажность
1
Время на строительство: 2 месяца
Стоимость от:
₽
Бесплатный выезд специалиста
ПодробнееОписание
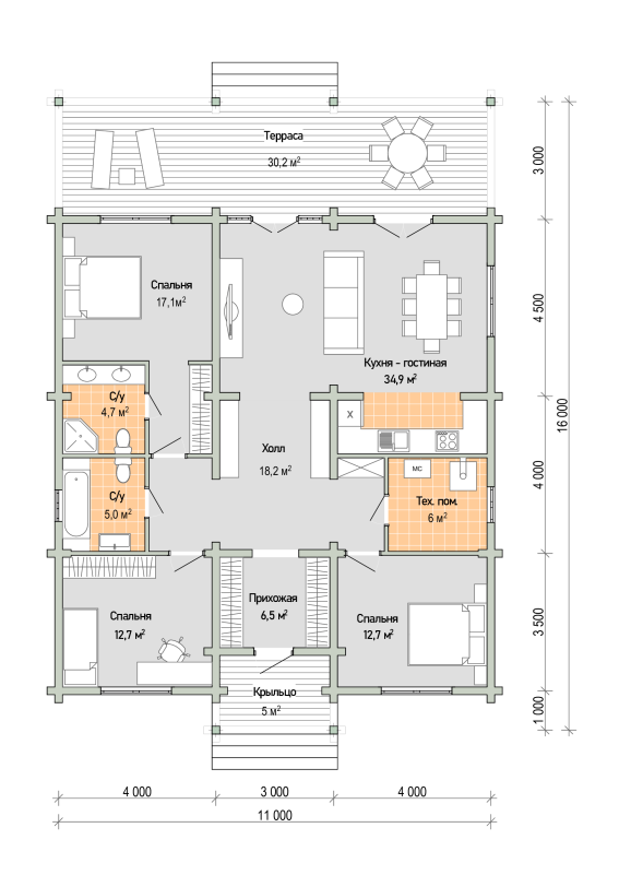
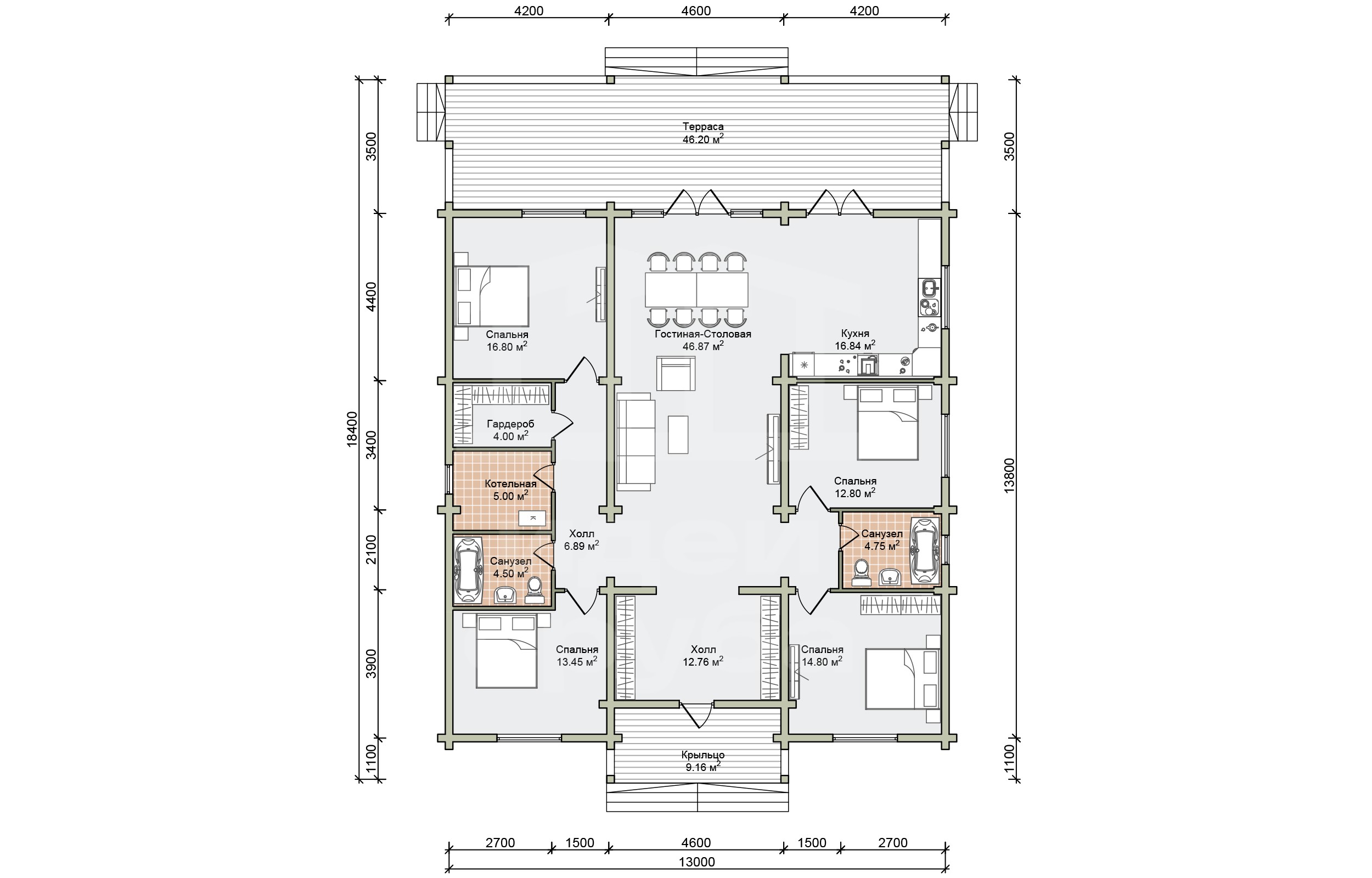
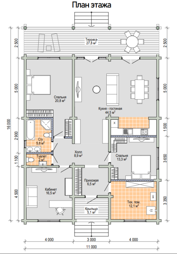
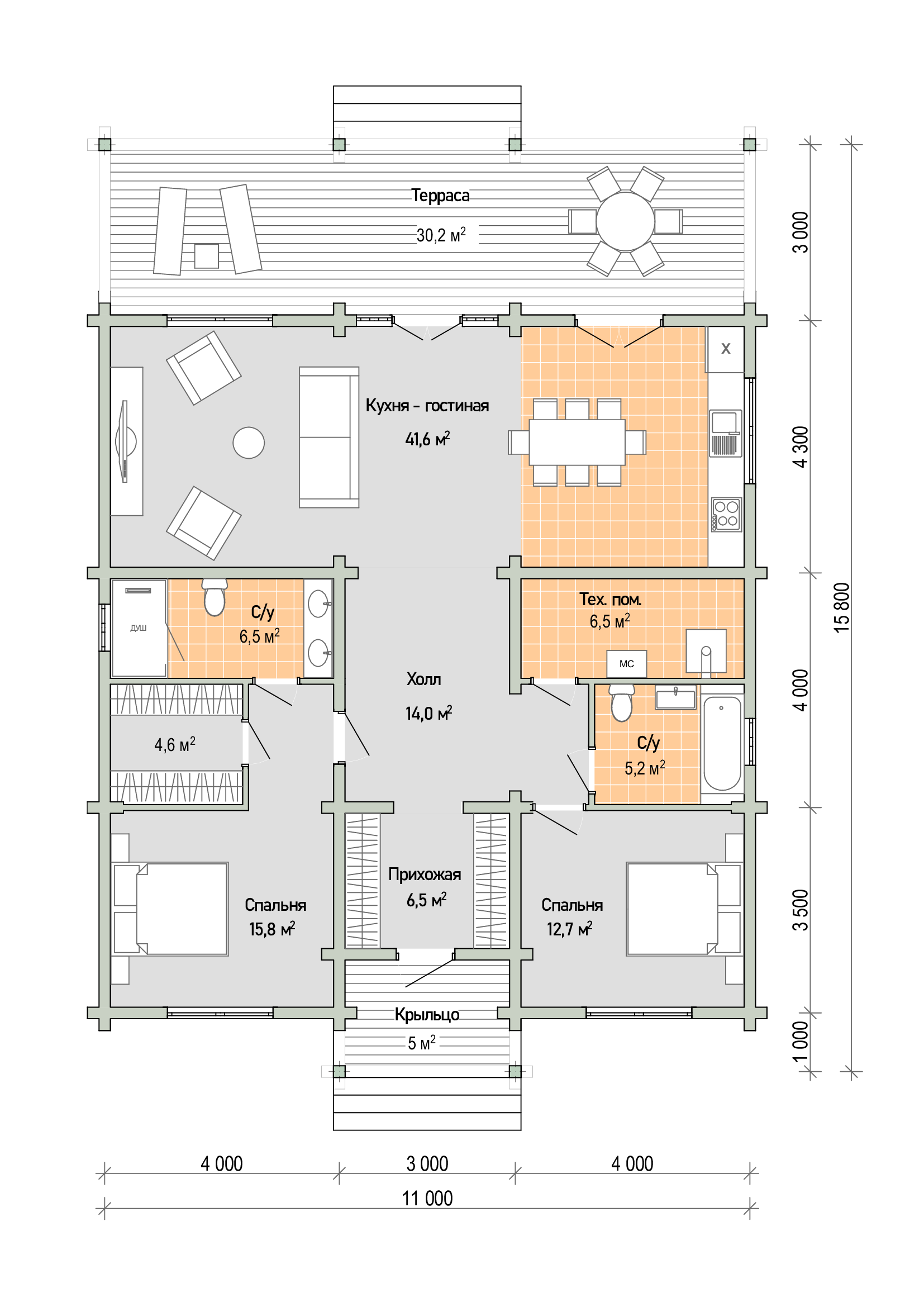
Просторный дом с эффектным вторым светом и выразительной архитектурой, где современные решения сочетаются с уютом загородной жизни. Главная особенность проекта — впечатляющий центральный холл, который объединяет пространство и создает ощущение простора. Второй свет в гостиной наполняет интерьер воздухом и естественным светом, добавляя дому торжественности и легкости.
Практичная планировка включает функциональные зоны: кухню-столовую, уютные спальни и удобные подсобные помещения. Особое внимание уделено деталям — продуманная система хранения и грамотное зонирование делают жизнь в этом доме комфортной и приятной.
"Сергиев Посад" — это идеальный баланс между представительностью и домашним теплом, где каждый квадратный метр работает на ваш комфорт. Отличный выбор для тех, кто ценит простор, свет и продуманную организацию пространства.
Хотите заказать такой проект?
Или заполните форму и мы ответим на все Ваши вопросы!








