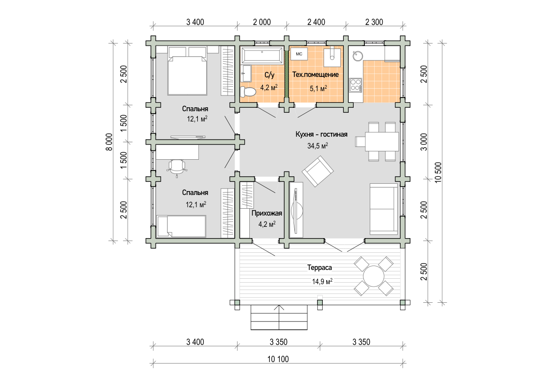
Площадь
87.1 м2
Спален
2
Размер
8х10 м
Этажность
1
Время на строительство: 2 месяца
Стоимость от:
₽
Бесплатный выезд специалиста
ПодробнееОписание
Проект "Радуга" представляет собой уютный и функциональный дом, идеально подходящий для комфортного проживания. С его размерами 8x9 метров и общей площадью в 72 квадратных метра, включая 2 просторные комнаты, этот одноэтажный дом предоставляет удобное жилое пространство в размере 64 квадратных метра.
Проект "Радуга" отличается от временной кровли, обеспечивающей защиту от внешних воздействий и погодных условий. Этот дом сочетает в себе надежность и долговечность.
Дополнительные особенности этого проекта включают в себя террасу, котельную и мансарду, предоставляя вам разнообразные возможности для создания уникального и уютного жилища. Идеальный выбор для тех, кто ценит комфорт и функциональность в своем будущем доме.
Хотите заказать такой проект?
Или заполните форму и мы ответим на все Ваши вопросы!








