Строительство
домов
под ключ

пришлите проект для расчета
Москва info@ideisruba.ru

по всем вопросам

8 800 301-58-38 Заказать звонок

ежедневно с 9:00 до 19:00

пришлите проект для расчета
Москва info@ideisruba.ru

по всем вопросам

8 800 301-58-38 Заказать звонок

ежедневно с 9:00 до 19:00

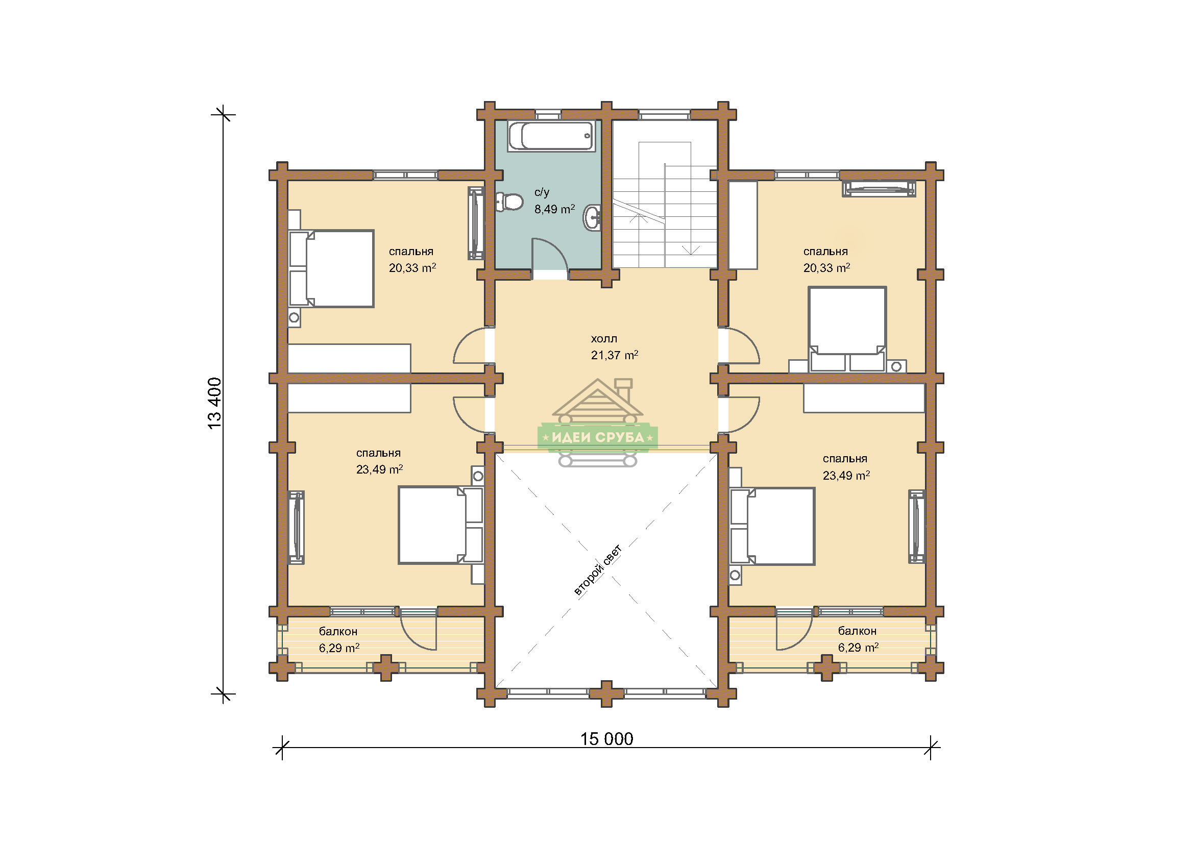
Проект дома Истра

Дом из бруса (13x15 м) - 330 м2

Площадь

330 м2

Спален

5

Размер

13x15 м

Этажность

2

Планировка

1 этаж Планировка 1 этажа
2 этаж Планировка 2 этажа

Выберите технологию строительства

Время на строительство: 2 месяца

Стоимость от:

Бесплатный выезд специалиста

Подробнее

Планировка

1 этаж Планировка 1 этажа
2 этаж Планировка 2 этажа

Варианты исполнения

Под крышу
  • Фундамент
    info

    Выберите фундамент выше

    Ленточный фундамент

    • Укладка геотекстиля ТК и устройство террасы;
    • Песчаная подготовка толщиной 200 мм (ТК и террасы);
    • Ростверк размером 400х400 мм под внешними и внутренними несущими стенами, а также террасами + сваи = 1,3 метра через каждые 1,5 метра;
    • Наплавляемая гидроизоляция - внешний контур ростверка под ТК снаружи - вертикально
    • Защитная мембрана - внешний контур ростверка снаружи - вертикально;
    • Обратная засыпка песком;
    • Монолитная плита толщиной 150 мм;
    • Укладка бетона марки М300.

    Плита

    • Планировка участка
    • Разработка котлована под фундамент
    • Ручная доработка грунта
    • Монтаж закладных под инженерные коммуникации
    • Укладка геотекстиля
    • Устройство песчаного основания с вибротрамбовкой
    • Устройство гравийного основания
    • Устройство гидроизоляции
    • Монтаж опалубки
    • Двухслойное армирование с ячейкой 200x200мм
    • Бетонирование М300 t=300

    Железобетонные сваи

    • Пробное забуривание (иследование грунта)
    • Ж/Б сечением 200х200 мм, длина сваи 3 м.
    •  Оголовки 200х200 мм с антикоррозийным покрытием
    •  Монтаж спецтехникой

    Винтовые сваи

    • Выезд для привязки дома к участку и пробы грунта
    • Сваи с антикоррозийным покрытием диаметром 108 мм, толщина стенки 4мм, высота 2,5 м.
    • Оголовки с антикоррозийным покрытием
    • Монтаж.

    Выберите фундамент выше

    Ленточный фундамент

    • Укладка геотекстиля ТК и устройство террасы;
    • Песчаная подготовка толщиной 200 мм (ТК и террасы);
    • Ростверк размером 400х400 мм под внешними и внутренними несущими стенами, а также террасами + сваи = 1,3 метра через каждые 1,5 метра;
    • Наплавляемая гидроизоляция - внешний контур ростверка под ТК снаружи - вертикально
    • Защитная мембрана - внешний контур ростверка снаружи - вертикально;
    • Обратная засыпка песком;
    • Монолитная плита толщиной 150 мм;
    • Укладка бетона марки М300.

    Плита

    • Планировка участка
    • Разработка котлована под фундамент
    • Ручная доработка грунта
    • Монтаж закладных под инженерные коммуникации
    • Укладка геотекстиля
    • Устройство песчаного основания с вибротрамбовкой
    • Устройство гравийного основания
    • Устройство гидроизоляции
    • Монтаж опалубки
    • Двухслойное армирование с ячейкой 200x200мм
    • Бетонирование М300 t=300

    Железобетонные сваи

    • Пробное забуривание (иследование грунта)
    • Ж/Б сечением 200х200 мм, длина сваи 3 м.
    •  Оголовки 200х200 мм с антикоррозийным покрытием
    •  Монтаж спецтехникой

    Винтовые сваи

    • Выезд для привязки дома к участку и пробы грунта
    • Сваи с антикоррозийным покрытием диаметром 108 мм, толщина стенки 4мм, высота 2,5 м.
    • Оголовки с антикоррозийным покрытием
    • Монтаж.

    Свайно-ростверковый

    • Планировка участка;
    • Бурение скважин под БНС (буро набивные сваи);
    • Монтаж арматурного каркаса ф12мм;
    • Бетонирование с гидроизоляцией;
    • Земляные работы под песчаное основание с трамбовкой;
    • Распушовка свай под армирование ростверка;
    • Монтаж опалубки.

    Плита

    • Планировка участка
    • Разработка котлована под фундамент
    • Ручная доработка грунта
    • Монтаж закладных под инженерные коммуникации
    • Укладка геотекстиля
    • Устройство песчаного основания с вибротрамбовкой
    • Устройство гравийного основания
    • Устройство гидроизоляции
    • Монтаж опалубки
    • Двухслойное армирование с ячейкой 200x200мм
    • Бетонирование М300 t=300

    Свайно-ростверковый

    • Планировка участка;
    • Бурение скважин под БНС D=300мм (буро набивные сваи);
    • Монтаж арматурного каркаса ф12мм;
    • Бетонирование с гидроизоляцией;
    • Земляные работы под песчаное основание с трамбовкой;
    • Распушовка свай под армирование ростверка;
    • Монтаж опалубки.

    Плита

    • Планировка участка
    • Разработка котлована под фундамент
    • Ручная доработка грунта
    • Монтаж закладных под инженерные коммуникации
    • Укладка геотекстиля
    • Устройство песчаного основания с вибротрамбовкой
    • Устройство гравийного основания
    • Устройство гидроизоляции
    • Монтаж опалубки
    • Двухслойное армирование с ячейкой 200x200мм
    • Бетонирование М300 t=300
  • Балки перекрытия
    info

    Лаги перекрытия 1-го и 2-го этажа

    • Брус сухой строганный 200×100 мм (лаги)
    • Монтаж балок с шагом 60 см по проекту
    • Полная обработка всех пиломатериалов антисептиком перед монтажом
    • Выравнивание по уровню и крепление к опорным конструкциям
    • Контроль горизонтальности и жёсткости каркаса

    Лаги перекрытия 1-го и 2-го этажа

    • Брус обрезной 200×100 мм (лаги)
    • Монтаж балок с шагом 60 см по проекту
    • Полная обработка всех пиломатериалов антисептиком перед монтажом
    • Выравнивание по уровню и крепление к опорным конструкциям
    • Контроль горизонтальности и жёсткости каркаса

    Каркасные перекрытия 1-го и 2-го этажа

    • Брус сухой строганный 200×100 мм (лаги)
    • Монтаж балок с шагом 60 см по проекту
    • Полная обработка всех пиломатериалов антисептиком перед монтажом
    • Выравнивание по уровню и крепление к опорным конструкциям
    • Контроль горизонтальности и жёсткости каркаса
  • Стеновой комплект
    info

    Профилированный брус

    Клеенный брус

    Сечение 145х145 мм

    • Стеновой комплект под проект
    • Столбы 200х200 из клееного бруса
    • Межвенцовый утеплитель Шелтер (толщина 10 мм)
    • Монтаж сруба дома на узел "Сила"
    • Обвязочный брус 200х200 (подкладной венец)
    • Стеклоизол (гидроизоляция фундамента)
    • Доставка и выгрузка манипулятором

    Сечение 145х195 мм

    • Стеновой комплект под проект
    • Столбы 200х200 из клееного бруса
    • Межвенцовый утеплитель Шелтер (толщина 10 мм)
    • Монтаж сруба дома на узел "Сила"
    • Обвязочный брус 200х200 (подкладной венец)
    • Стеклоизол (гидроизоляция фундамента)
    • Доставка и выгрузка манипулятором

    Сечение 185х160 мм

    • Стеновой комплект под проект
    • Межвенцовый утеплитель Шелтер (толщина 10 мм)
    • Монтаж сруба дома на узел "Сила"
    • Обвязочный брус 200х200 (подкладной венец)
    • Стеклоизол (гидроизоляция фундамента)
    • Доставка и выгрузка манипулятором

    Сечение 185х202 мм

    • Стеновой комплект под проект
    • Межвенцовый утеплитель Шелтер (толщина 10 мм)
    • Монтаж сруба дома на узел "Сила"
    • Обвязочный брус 200х200 (подкладной венец)
    • Стеклоизол (гидроизоляция фундамента)
    • Доставка и выгрузка манипулятором

    Сечение 185х242 мм

    • Стеновой комплект под проект
    • Межвенцовый утеплитель Шелтер (толщина 10 мм)
    • Монтаж сруба дома на узел "Сила"
    • Обвязочный брус 200х200 (подкладной венец)
    • Стеклоизол (гидроизоляция фундамента)
    • Доставка и выгрузка манипулятором

    Сечение 275х160 мм

    • Стеновой комплект под проект
    • Межвенцовый утеплитель Шелтер (толщина 10 мм)
    • Монтаж сруба дома на узел "Сила"
    • Обвязочный брус 200х200 (подкладной венец)
    • Стеклоизол (гидроизоляция фундамента)
    • Доставка и выгрузка манипулятором

    Сечение 275х202 мм

    • Стеновой комплект под проект
    • Межвенцовый утеплитель Шелтер (толщина 10 мм)
    • Монтаж сруба дома на узел "Сила"
    • Обвязочный брус 200х200 (подкладной венец)
    • Стеклоизол (гидроизоляция фундамента)
    • Доставка и выгрузка манипулятором

    Сечение 275х242 мм

    • Стеновой комплект под проект
    • Межвенцовый утеплитель Шелтер (толщина 10 мм)
    • Монтаж сруба дома на узел "Сила"
    • Обвязочный брус 200х200 (подкладной венец)
    • Стеклоизол (гидроизоляция фундамента)
    • Доставка и выгрузка манипулятором

    Оцилиндрованное бревно

    Рубленное бревно

    Диаметр 200 мм

    • Стеновой комплект под проект
    • Лаги 1-го и 2-го этажа — брус 200х100. Монтаж балок с шагом 60 см
    • Стропила брус 50х200 обрезные, шаг уст-ки 60см
    • Межвенцовый утеплитель Шелтер (толщина 10 мм)
    • Антисептирование стенового комплекта в летнее время
    • Монтаж сруба дома на узел "Сила"
    • Обвязочный брус 200х200 (подкладной венец)
    • Стеклоизол (гидроизоляция фундамента)
    • Доставка и выгрузка манипулятором

    Диаметр 220 мм

    • Стеновой комплект под проект
    • Лаги 1-го и 2-го этажа — брус 200х100. Монтаж балок с шагом 60 см
    • Стропила брус 50х200 обрезные, шаг уст-ки 60см
    • Межвенцовый утеплитель Шелтер (толщина 10 мм)
    • Антисептирование стенового комплекта в летнее время
    • Монтаж сруба дома на узел "Сила"
    • Обвязочный брус 200х200 (подкладной венец)
    • Стеклоизол (гидроизоляция фундамента)
    • Доставка и выгрузка манипулятором

    Диаметр 240 мм

    • Стеновой комплект под проект
    • Лаги 1-го и 2-го этажа — брус 200х100. Монтаж балок с шагом 60 см
    • Стропила брус 50х200 обрезные, шаг уст-ки 60см
    • Межвенцовый утеплитель Шелтер (толщина 10 мм)
    • Антисептирование стенового комплекта в летнее время
    • Монтаж сруба дома на узел "Сила"
    • Обвязочный брус 200х200 (подкладной венец)
    • Стеклоизол (гидроизоляция фундамента)
    • Доставка и выгрузка манипулятором

    Диаметр 260 мм

    • Стеновой комплект под проект
    • Лаги 1-го и 2-го этажа — брус 200х100. Монтаж балок с шагом 60 см
    • Стропила брус 50х200 обрезные, шаг уст-ки 60см
    • Межвенцовый утеплитель Шелтер (толщина 10 мм)
    • Антисептирование стенового комплекта в летнее время
    • Монтаж сруба дома на узел "Сила"
    • Обвязочный брус 200х200 (подкладной венец)
    • Стеклоизол (гидроизоляция фундамента)
    • Доставка и выгрузка манипулятором

    Диаметр 280 мм

    • Стеновой комплект под проект
    • Лаги 1-го и 2-го этажа — брус 200х100. Монтаж балок с шагом 60 см
    • Стропила брус 50х200 обрезные, шаг уст-ки 60см
    • Межвенцовый утеплитель Шелтер (толщина 10 мм)
    • Антисептирование стенового комплекта в летнее время
    • Монтаж сруба дома на узел "Сила"
    • Обвязочный брус 200х200 (подкладной венец)
    • Стеклоизол (гидроизоляция фундамента)
    • Доставка и выгрузка манипулятором

    Диаметр 220-260 мм

    • Стеновой комплект под проект
    • Лаги 1-го и 2-го этажа — брус 200х100. Монтаж балок с шагом 60 см
    • Стропила брус 50х200 обрезные, шаг уст-ки 60см
    • Межвенцовый утеплитель Шелтер (толщина 10 мм)
    • Антисептирование стенового комплекта в летнее время
    • Монтаж сруба дома на узел "Сила"
    • Обвязочный брус 200х200 (подкладной венец)
    • Стеклоизол (гидроизоляция фундамента)
    • Доставка и выгрузка манипулятором

    Диаметр 240-280 мм

    • Стеновой комплект под проект
    • Лаги 1-го и 2-го этажа — брус 200х100. Монтаж балок с шагом 60 см
    • Стропила брус 50х200 обрезные, шаг уст-ки 60см
    • Межвенцовый утеплитель Шелтер (толщина 10 мм)
    • Антисептирование стенового комплекта в летнее время
    • Монтаж сруба дома на узел "Сила"
    • Обвязочный брус 200х200 (подкладной венец)
    • Стеклоизол (гидроизоляция фундамента)
    • Доставка и выгрузка манипулятором

    Диаметр 280-320 мм

    • Стеновой комплект под проект
    • Лаги 1-го и 2-го этажа — брус 200х100. Монтаж балок с шагом 60 см
    • Стропила брус 50х200 обрезные, шаг уст-ки 60см
    • Межвенцовый утеплитель Шелтер (толщина 10 мм)
    • Антисептирование стенового комплекта в летнее время
    • Монтаж сруба дома на узел "Сила"
    • Обвязочный брус 200х200 (подкладной венец)
    • Стеклоизол (гидроизоляция фундамента)
    • Доставка и выгрузка манипулятором
  • Стропильная система
    info

    Стропильная система

    • Брус сухой строганный 50×200 мм (стропила)
    • Установка с шагом 60 см по проекту кровли
    • Полная обработка всех пиломатериалов антисептиком перед монтажом
    • Сборка каркаса с обеспечением уклона и жёсткости конструкции
    • Крепление к мауэрлату и коньковому брусу
    • Контроль геометрии и горизонтальности элементов

    Стропильная система

    • Брус обрезной 50×200 мм (стропила)
    • Установка с шагом 60 см по проекту кровли
    • Полная обработка всех пиломатериалов антисептиком перед монтажом
    • Подгонка и подрезка элементов на объекте при необходимости
    • Сборка каркаса с обеспечением уклона и жёсткости конструкции
    • Крепление к мауэрлату и коньковому брусу
    • Контроль геометрии и горизонтальности элементов
  • Кровля
    info

    Временная кровля

    • Материал покрытия: армированная пленка;
    • Обрешетка: доска 100х25;
    • Антисептирования пиломатериала;
    • Скользящие крепления.

    Металлочерепица

    • Металлочерепица “Grand Line” 0,5;
    • Конек, карнизная планка, ветровая планка;
    • Гидроизоляция, кровельная мембрана;
    • Контр обрешетка – брус 50х50 мм;
    • Антисептирования пиломатериала;
    • ПВХ вент. лента;
    • Коньковый аэратор;
    • Крюки для желобов в подарок!

    Мягкая черепица

    • Мягкая черепица многослойная "Shinglas" Кантри;
    • Конек, карнизная планка;
    • Кровельная мастика;
    • Коньковый аэратор;
    • Ветровая планка, капельник карнизный;
    • Подкладочный ковер Anderep
    • Антисептирование пиломатериала;
    • Крюки для желобов в подарок!

    Кликфальц

    • Кликфальц Double Pro Grand Line 0,5 (обычно оцинкованная сталь с полимерным покрытием), где одна сторона оснащена замком, а другая — перфорацией для шурупов;
    • Коньковая, карнизная и торцевая планка;
    • Вентилируемый прогон опорный фальц PRO 35;
    • Шумоизолирующая лента под фальц;
    • Коньковый аэратор;
    • Кровельная мембрана.
    • Пвх вент. лента;
    • Антисептирование материала;
    • Крюки для желобов в подарок!

    Браас

    • Рядовая, коньковая черепица Braas;
    • Боковая универсальная черепица Braas;
    • Половинчатая черепица Франкфурт;
    • Ребристый желобок.
    • Планка примыкания в штробу 60;
    • Аэроэлемент свеса Ch;
    • Опора коньков/хребтового бруска;
    • Кровельная мембрана;
    • Антисептирование материала;
    • Крюки для желобов в подарок!

    Временная кровля

    • Материал покрытия: армированная пленка;
    • Обрешетка: доска 100х25;
    • Антисептирования пиломатериала;
    • Скользящие крепления.

    Металлочерепица

    • Металлочерепица “Grand Line” 0,5;
    • Конек, карнизная планка, ветровая планка;
    • Гидроизоляция, кровельная мембрана;
    • Контр обрешетка – брус 50х50 мм;
    • Антисептирования пиломатериала;
    • ПВХ вент. лента;
    • Коньковый аэратор;
    • Крюки для желобов в подарок!

    Мягкая черепица

    • Мягкая черепица многослойная "Shinglas" Кантри;
    • Конек, карнизная планка;
    • Кровельная мастика;
    • Коньковый аэратор;
    • Ветровая планка, капельник карнизный;
    • Подкладочный ковер Anderep
    • Антисептирование пиломатериала;
    • Крюки для желобов в подарок!

    Кликфальц

    • Кликфальц Double Pro Grand Line 0,5 (обычно оцинкованная сталь с полимерным покрытием), где одна сторона оснащена замком, а другая — перфорацией для шурупов;
    • Коньковая, карнизная и торцевая планка;
    • Вентилируемый прогон опорный фальц PRO 35;
    • Шумоизолирующая лента под фальц;
    • Коньковый аэратор;
    • Кровельная мембрана.
    • Пвх вент. лента;
    • Антисептирование материала;
    • Крюки для желобов в подарок!

    Браас

    • Рядовая, коньковая черепица Braas;
    • Боковая универсальная черепица Braas;
    • Половинчатая черепица Франкфурт;
    • Ребристый желобок.
    • Планка примыкания в штробу 60;
    • Аэроэлемент свеса Ch;
    • Опора коньков/хребтового бруска;
    • Кровельная мембрана;
    • Антисептирование материала;
    • Крюки для желобов в подарок!

    Металлочерепица

    • Металлочерепица “Grand Line” 0,5;
    • Стропила – доска 50х200 мм;
    • Конек, карнизная планка, ветровая планка;
    • Гидроизоляция, кровельная мембрана;
    • Контр обрешетка – брус 50х50 мм.

    Мягкая черепица

    • Мягкая черепица "Shinglas" Кантри;
    • Конек, карнизная планка;
    • Коньковый аэратор;
    • Ветровая планка;
    • Капельник карнизный.

    Металлочерепица

    • Металлочерепица “Grand Line” 0,5;
    • Стропила – доска 50х200 мм;
    • Конек, карнизная планка, ветровая планка;
    • Гидроизоляция, кровельная мембрана;
    • Контр обрешетка – брус 50х50 мм.

    Мягкая черепица

    • Мягкая черепица "Shinglas" Кантри;
    • Конек, карнизная планка;
    • Коньковый аэратор;
    • Ветровая планка;
    • Капельник карнизный.
  • Обсадные короба

    Монтаж обсады

    • Доска сухая строганная 45×195 мм
    • Брусок строганный 50×50 мм
    • Установка обсадных коробов по периметру окон
    • Подгонка и крепление элементов без зазоров
    • Утепление проемов "Шелтером"
    • Обработка торцов антисептиком
    • Проверка геометрии и горизонтальности конструкции

    Монтаж обсады

    • Доска сухая строганная 45×195 мм
    • Брусок строганный 50×50 мм
    • Установка обсадных коробов по периметру окон
    • Подгонка и крепление элементов без зазоров
    • Утепление проемов "Шелтером"
    • Обработка торцов антисептиком
    • Проверка геометрии и горизонтальности конструкции
  • Окна, двери

    Окна ПВХ VEKA WHS 72

    • 5-камерный профиль WHS 72
    • 2-камерное энергосберегающее стеклопакет толщиной 40 мм
    • Фурнитура MACO ECO — надёжная и долговечная
    • Гарантия 5 лет на профиль и фурнитуру

    Двери

    • Индивидуальные деревянные

    Окна ПВХ VEKA WHS 72

    • 5-камерный профиль WHS 72
    • 2-камерное энергосберегающее стеклопакет толщиной 40 мм
    • Фурнитура MACO ECO — надёжная и долговечная
    • Гарантия 5 лет на профиль и фурнитуру

    Двери

    • Индивидуальные деревянные
  • Утепление

    Утепление кровли, потолка и пола

    • Утеплитель UMAXTEX Termo Универсальная плита смарт 200 мм
    • Пароизоляция FAKRO E-Top 190 — надёжная защита от конденсата
    • Диффузная мембрана EUROTOP N15 FAKRO — вывод пара и защита от ветра
    • Контробрешётка: брусок 50×50 мм (кровля), 20×40 мм (потолок/пол) — для вентзазора
    • Обрешётка: доска строганная 45×90 мм (пол), обрезная 25×100×6000 мм (потолок/кровля)
    • Слои утеплителя укладываются со смещением швов — исключаются «мостики холода»

    Утепление кровли, потолка и пола

    • Утеплитель UMAXTEX Termo Универсальная плита смарт 200 мм
    • Пароизоляция FAKRO E-Top 190 — надёжная защита от конденсата
    • Диффузная мембрана EUROTOP N15 FAKRO — вывод пара и защита от ветра
    • Контробрешётка: брусок 50×50 мм (кровля), 20×40 мм (потолок/пол) — для вентзазора
    • Обрешётка: доска строганная 45×90 мм (пол), обрезная 25×100×6000 мм (потолок/кровля)
    • Слои утеплителя укладываются со смещением швов — исключаются «мостики холода»
  • Инженерные системы

    Инженерные системы

    • Электрика, водоснабжение, канализация — скрытая разводка с учётом усадки сруба
    • Трубы из PEX/металлопластика, канализация — ПВХ, электрика — в гофре по СП и ПУЭ
    • Подготовка под отопление: котёл, радиаторы или тёплый пол (по проекту)
    • Вентиляция: естественная или приточно-вытяжная с рекуперацией
    • Подключение к внешним сетям — по техусловиям заказчика

    Инженерные системы

    • Электрика, водоснабжение, канализация — скрытая разводка с учётом усадки сруба
    • Трубы из PEX/металлопластика, канализация — ПВХ, электрика — в гофре по СП и ПУЭ
    • Подготовка под отопление: котёл, радиаторы или тёплый пол (по проекту)
    • Вентиляция: естественная или приточно-вытяжная с рекуперацией
    • Подключение к внешним сетям — по техусловиям заказчика
  • Покраска

    Покраска внутренних и внешних стен

    • Грунтовка внешних стен: защитное грунт-масло GNature
    • Внешнее покрытие: Защитное масло GNature с колеровкой под заказ
    • Внутреннее покрытие: Лазурь с пчелиным воском GNature с колеровкой под заказ
    • Нанесение в 2 слоя для глубокой защиты и насыщенного цвета
    • Обработка всех поверхностей — стены и торцы бруса
    • Экологичные составы на натуральной основе — безопасны для дома

    Покраска внутренних и внешних стен из бревна

    • Грунтовка внешних стен: защитное грунт-масло GNature
    • Внешнее покрытие: Защитное масло GNature с колеровкой под заказ
    • Внутреннее покрытие: Лазурь с пчелиным воском GNature с колеровкой под заказ
    • Нанесение в 2 слоя для глубокой защиты и насыщенного цвета
    • Обработка всех поверхностей — стены и торцы бревна
    • Монтаж тёплого шва герметиком
    • Экологичные составы на натуральной основе — безопасны для дома
от
Теплый контур
  • Фундамент
    info
  • Балки перекрытия
    info
  • Стеновой комплект
    info
  • Стропильная система
    info
  • Кровля
    info
  • Обсадные короба
    info
  • Окна, двери
    info
  • Утепление
    info
  • Инженерные системы
  • Покраска
от 3 960 000
Под ключ
  • Фундамент
    info
  • Балки перекрытия
    info
  • Стеновой комплект
    info
  • Стропильная система
    info
  • Кровля
    info
  • Обсадные короба
    info
  • Окна, двери
    info
  • Утепление
    info
  • Инженерные системы
    info
  • Покраска
    info
Цена по запросу

Комплектация Дома

    Стены

    Оцилиндрованное бревно

    Рубленное бревно

    Профилированный брус

    Клеенный брус

    Диаметр 200 мм

    • Стеновой комплект под проект
    • Лаги 1-го и 2-го этажа — брус 200х100. Монтаж балок с шагом 60 см
    • Стропила брус 50х200 обрезные, шаг уст-ки 60см
    • Межвенцовый утеплитель Шелтер (толщина 10 мм)
    • Антисептирование стенового комплекта в летнее время
    • Монтаж сруба дома на узел "Сила"
    • Обвязочный брус 200х200 (подкладной венец)
    • Стеклоизол (гидроизоляция фундамента)
    • Доставка и выгрузка манипулятором

    Диаметр 220 мм

    • Стеновой комплект под проект
    • Лаги 1-го и 2-го этажа — брус 200х100. Монтаж балок с шагом 60 см
    • Стропила брус 50х200 обрезные, шаг уст-ки 60см
    • Межвенцовый утеплитель Шелтер (толщина 10 мм)
    • Антисептирование стенового комплекта в летнее время
    • Монтаж сруба дома на узел "Сила"
    • Обвязочный брус 200х200 (подкладной венец)
    • Стеклоизол (гидроизоляция фундамента)
    • Доставка и выгрузка манипулятором

    Диаметр 240 мм

    • Стеновой комплект под проект
    • Лаги 1-го и 2-го этажа — брус 200х100. Монтаж балок с шагом 60 см
    • Стропила брус 50х200 обрезные, шаг уст-ки 60см
    • Межвенцовый утеплитель Шелтер (толщина 10 мм)
    • Антисептирование стенового комплекта в летнее время
    • Монтаж сруба дома на узел "Сила"
    • Обвязочный брус 200х200 (подкладной венец)
    • Стеклоизол (гидроизоляция фундамента)
    • Доставка и выгрузка манипулятором

    Диаметр 260 мм

    • Стеновой комплект под проект
    • Лаги 1-го и 2-го этажа — брус 200х100. Монтаж балок с шагом 60 см
    • Стропила брус 50х200 обрезные, шаг уст-ки 60см
    • Межвенцовый утеплитель Шелтер (толщина 10 мм)
    • Антисептирование стенового комплекта в летнее время
    • Монтаж сруба дома на узел "Сила"
    • Обвязочный брус 200х200 (подкладной венец)
    • Стеклоизол (гидроизоляция фундамента)
    • Доставка и выгрузка манипулятором

    Диаметр 280 мм

    • Стеновой комплект под проект
    • Лаги 1-го и 2-го этажа — брус 200х100. Монтаж балок с шагом 60 см
    • Стропила брус 50х200 обрезные, шаг уст-ки 60см
    • Межвенцовый утеплитель Шелтер (толщина 10 мм)
    • Антисептирование стенового комплекта в летнее время
    • Монтаж сруба дома на узел "Сила"
    • Обвязочный брус 200х200 (подкладной венец)
    • Стеклоизол (гидроизоляция фундамента)
    • Доставка и выгрузка манипулятором

    Диаметр 220-260 мм

    • Стеновой комплект под проект
    • Лаги 1-го и 2-го этажа — брус 200х100. Монтаж балок с шагом 60 см
    • Стропила брус 50х200 обрезные, шаг уст-ки 60см
    • Межвенцовый утеплитель Шелтер (толщина 10 мм)
    • Антисептирование стенового комплекта в летнее время
    • Монтаж сруба дома на узел "Сила"
    • Обвязочный брус 200х200 (подкладной венец)
    • Стеклоизол (гидроизоляция фундамента)
    • Доставка и выгрузка манипулятором

    Диаметр 240-280 мм

    • Стеновой комплект под проект
    • Лаги 1-го и 2-го этажа — брус 200х100. Монтаж балок с шагом 60 см
    • Стропила брус 50х200 обрезные, шаг уст-ки 60см
    • Межвенцовый утеплитель Шелтер (толщина 10 мм)
    • Антисептирование стенового комплекта в летнее время
    • Монтаж сруба дома на узел "Сила"
    • Обвязочный брус 200х200 (подкладной венец)
    • Стеклоизол (гидроизоляция фундамента)
    • Доставка и выгрузка манипулятором

    Диаметр 280-320 мм

    • Стеновой комплект под проект
    • Лаги 1-го и 2-го этажа — брус 200х100. Монтаж балок с шагом 60 см
    • Стропила брус 50х200 обрезные, шаг уст-ки 60см
    • Межвенцовый утеплитель Шелтер (толщина 10 мм)
    • Антисептирование стенового комплекта в летнее время
    • Монтаж сруба дома на узел "Сила"
    • Обвязочный брус 200х200 (подкладной венец)
    • Стеклоизол (гидроизоляция фундамента)
    • Доставка и выгрузка манипулятором

    Сечение 145х145 мм

    • Стеновой комплект под проект
    • Лаги 1-го и 2-го этажа — брус 200х100 сухие строганные. Монтаж балок с шагом 60 см
    • Стропила брус 50х200 сухие строганные, шаг уст-ки 60см
    • Столбы 200х200 из клееного бруса
    • Межвенцовый утеплитель Шелтер (толщина 10 мм)
    • Монтаж сруба дома на узел "Сила"
    • Обвязочный брус 200х200 (подкладной венец)
    • Стеклоизол (гидроизоляция фундамента)
    • Доставка и выгрузка манипулятором

    Сечение 145х195 мм

    • Стеновой комплект под проект
    • Лаги 1-го и 2-го этажа — брус 200х100 сухие строганные. Монтаж балок с шагом 60 см
    • Стропила брус 50х200 сухие строганные, шаг уст-ки 60см
    • Столбы 200х200 из клееного бруса
    • Межвенцовый утеплитель Шелтер (толщина 10 мм)
    • Монтаж сруба дома на узел "Сила"
    • Обвязочный брус 200х200 (подкладной венец)
    • Стеклоизол (гидроизоляция фундамента)
    • Доставка и выгрузка манипулятором

    Сечение 185х160 мм

    • Стеновой комплект под проект
    • Лаги 1-го и 2-го этажа — брус 200х100 сухие строганные. Монтаж балок с шагом 60 см
    • Стропила брус 50х200 сухие строганные, шаг уст-ки 60см
    • Межвенцовый утеплитель Шелтер (толщина 10 мм)
    • Монтаж сруба дома на узел "Сила"
    • Обвязочный брус 200х200 (подкладной венец)
    • Стеклоизол (гидроизоляция фундамента)
    • Доставка и выгрузка манипулятором

    Сечение 185х202 мм

    • Стеновой комплект под проект
    • Лаги 1-го и 2-го этажа — брус 200х100 сухие строганные. Монтаж балок с шагом 60 см
    • Стропила брус 50х200 сухие строганные, шаг уст-ки 60см
    • Межвенцовый утеплитель Шелтер (толщина 10 мм)
    • Монтаж сруба дома на узел "Сила"
    • Обвязочный брус 200х200 (подкладной венец)
    • Стеклоизол (гидроизоляция фундамента)
    • Доставка и выгрузка манипулятором

    Сечение 185х242 мм

    • Стеновой комплект под проект
    • Лаги 1-го и 2-го этажа — брус 200х100 сухие строганные. Монтаж балок с шагом 60 см
    • Стропила брус 50х200 сухие строганные, шаг уст-ки 60см
    • Межвенцовый утеплитель Шелтер (толщина 10 мм)
    • Монтаж сруба дома на узел "Сила"
    • Обвязочный брус 200х200 (подкладной венец)
    • Стеклоизол (гидроизоляция фундамента)
    • Доставка и выгрузка манипулятором

    Сечение 275х160 мм

    • Стеновой комплект под проект
    • Лаги 1-го и 2-го этажа — брус 200х100 сухие строганные. Монтаж балок с шагом 60 см
    • Стропила брус 50х200 сухие строганные, шаг уст-ки 60см
    • Межвенцовый утеплитель Шелтер (толщина 10 мм)
    • Монтаж сруба дома на узел "Сила"
    • Обвязочный брус 200х200 (подкладной венец)
    • Стеклоизол (гидроизоляция фундамента)
    • Доставка и выгрузка манипулятором

    Сечение 275х202 мм

    • Стеновой комплект под проект
    • Лаги 1-го и 2-го этажа — брус 200х100 сухие строганные. Монтаж балок с шагом 60 см
    • Стропила брус 50х200 сухие строганные, шаг уст-ки 60см
    • Межвенцовый утеплитель Шелтер (толщина 10 мм)
    • Монтаж сруба дома на узел "Сила"
    • Обвязочный брус 200х200 (подкладной венец)
    • Стеклоизол (гидроизоляция фундамента)
    • Доставка и выгрузка манипулятором

    Сечение 275х242 мм

    • Стеновой комплект под проект
    • Лаги 1-го и 2-го этажа — брус 200х100 сухие строганные. Монтаж балок с шагом 60 см
    • Стропила брус 50х200 сухие строганные, шаг уст-ки 60см
    • Межвенцовый утеплитель Шелтер (толщина 10 мм)
    • Монтаж сруба дома на узел "Сила"
    • Обвязочный брус 200х200 (подкладной венец)
    • Стеклоизол (гидроизоляция фундамента)
    • Доставка и выгрузка манипулятором
    Окна

    Окна

    Veka Softline 70 — пятикамерная профильная система класса энергоэффективности А+. Подходит для создания больших площадей остекления и панорамных окон.
    Некоторые характеристики:
    • глубина монтажа — 70 мм;
    • максимальная толщина заполнения (стеклопакета) — 42 мм;
    • коэффициент теплоизоляции — 0,94 м²С/Вт;
    • коэффициент шумоизоляции — до 45 дБ;
    • два контура уплотнения;
    • высота фальца — 21 мм;
    • комбинация «створка + коробка» — 118 мм.
    Кровля

    Временная кровля

    • Материал покрытия: армированная пленка;
    • Обрешетка: доска 100х25;
    • Антисептирования пиломатериала;
    • Скользящие крепления.

    Металлочерепица

    • Металлочерепица “Grand Line” 0,5;
    • Конек, карнизная планка, ветровая планка;
    • Гидроизоляция, кровельная мембрана;
    • Контр обрешетка – брус 50х50 мм;
    • Антисептирования пиломатериала;
    • ПВХ вент. лента;
    • Коньковый аэратор;
    • Крюки для желобов в подарок!

    Мягкая черепица

    • Мягкая черепица многослойная "Shinglas" Кантри;
    • Конек, карнизная планка;
    • Кровельная мастика;
    • Коньковый аэратор;
    • Ветровая планка, капельник карнизный;
    • Подкладочный ковер Anderep
    • Антисептирование пиломатериала;
    • Крюки для желобов в подарок!

    Кликфальц

    • Стропила 50х200 обрешетка, строг. контробршетка;
    • Кликфальц Double Pro Grand Line 0,5 (обычно оцинкованная сталь с полимерным покрытием), где одна сторона оснащена замком, а другая — перфорацией для шурупов;
    • Коньковая, карнизная и торцевая планка;
    • Вентилируемый прогон опорный фальц PRO 35;
    • Шумоизолирующая лента под фальц;
    • Коньковый аэратор;
    • Кровельная мембрана.
    • Пвх вент. лента;
    • Антисептирование материала;
    • Крюки для желобов в подарок!

    Браас

    • Стропила 50х200 обрешетка, строг. контробршетка;
    • Рядовая, коньковая черепица Braas;
    • Боковая универсальная черепица Braas;
    • Половинчатая черепица Франкфурт;
    • Ребристый желобок.
    • Планка примыкания в штробу 60;
    • Аэроэлемент свеса Ch;
    • Опора коньков/хребтового бруска;
    • Кровельная мембрана;
    • Антисептирование материала;
    • Крюки для желобов в подарок!
    Фундамент

    Выберите фундамент выше

    Ленточный фундамент

    • Укладка геотекстиля ТК и устройство террасы;
    • Песчаная подготовка толщиной 200 мм (ТК и террасы);
    • Ростверк размером 400х400 мм под внешними и внутренними несущими стенами, а также террасами + сваи = 1,3 метра через каждые 1,5 метра;
    • Наплавляемая гидроизоляция - внешний контур ростверка под ТК снаружи - вертикально
    • Защитная мембрана - внешний контур ростверка снаружи - вертикально;
    • Обратная засыпка песком;
    • Монолитная плита толщиной 150 мм;
    • Укладка бетона марки М300.

    Плита

    • Планировка участка
    • Разработка котлована под фундамент
    • Ручная доработка грунта
    • Монтаж закладных под инженерные коммуникации
    • Укладка геотекстиля
    • Устройство песчаного основания с вибротрамбовкой
    • Устройство гравийного основания
    • Устройство гидроизоляции
    • Монтаж опалубки
    • Двухслойное армирование с ячейкой 200x200мм
    • Бетонирование М300 t=300

    Железобетонные сваи

    • Пробное забуривание (иследование грунта)
    • Ж/Б сечением 200х200 мм, длина сваи 3 м.
    •  Оголовки 200х200 мм с антикоррозийным покрытием
    •  Монтаж спецтехникой

    Винтовые сваи

    • Выезд для привязки дома к участку и пробы грунта
    • Сваи с антикоррозийным покрытием диаметром 108 мм, толщина стенки 4мм, высота 2,5 м.
    • Оголовки с антикоррозийным покрытием
    • Монтаж.
    Проектирование

    Архитектурный проект для регистрации в БТИ.

    В нашей компании вы можете выбрать готовый проект дома или заказать индивидуальный проект. Если подходящего варианта не найдется, мы разработаем проект с учетом всех ваших требований.

    Проектирование начинается с учета ваших личных предпочтений и потребностей вашей семьи, включая площадь дома, количество этажей и наличие дополнительных помещений. Также учитываются особенности строительства в конкретной местности и предпочтительный архитектурный стиль. На основе этих факторов принимаются решения о фундаменте и материале стен, которые должны быть правильно рассчитаны на местность и климат.

    Выбор перекрытий также зависит от технических аспектов и может включать монолитные плиты, сборные плиты или перекрытия по деревянным балкам. Чтобы избежать ошибок на этом этапе, рекомендуется обратиться к нашим специалистам, которые обладают знаниями в области строительства.

    Доставка

    В расчет на сайте уже включена доставка до Москвы и +200км от МКАД

      Стены

      Оцилиндрованное бревно

      Рубленное бревно

      Профилированный брус

      Клеенный брус

      Диаметр 200 мм

      • Стеновой комплект под проект
      • Лаги 1-го и 2-го этажа — брус 200х100. Монтаж балок с шагом 60 см
      • Стропила брус 50х200 обрезные, шаг уст-ки 60см
      • Межвенцовый утеплитель Шелтер (толщина 10 мм)
      • Антисептирование стенового комплекта в летнее время
      • Монтаж сруба дома на узел "Сила"
      • Обвязочный брус 200х200 (подкладной венец)
      • Стеклоизол (гидроизоляция фундамента)
      • Доставка и выгрузка манипулятором

      Диаметр 220 мм

      • Стеновой комплект под проект
      • Лаги 1-го и 2-го этажа — брус 200х100. Монтаж балок с шагом 60 см
      • Стропила брус 50х200 обрезные, шаг уст-ки 60см
      • Межвенцовый утеплитель Шелтер (толщина 10 мм)
      • Антисептирование стенового комплекта в летнее время
      • Монтаж сруба дома на узел "Сила"
      • Обвязочный брус 200х200 (подкладной венец)
      • Стеклоизол (гидроизоляция фундамента)
      • Доставка и выгрузка манипулятором

      Диаметр 240 мм

      • Стеновой комплект под проект
      • Лаги 1-го и 2-го этажа — брус 200х100. Монтаж балок с шагом 60 см
      • Стропила брус 50х200 обрезные, шаг уст-ки 60см
      • Межвенцовый утеплитель Шелтер (толщина 10 мм)
      • Антисептирование стенового комплекта в летнее время
      • Монтаж сруба дома на узел "Сила"
      • Обвязочный брус 200х200 (подкладной венец)
      • Стеклоизол (гидроизоляция фундамента)
      • Доставка и выгрузка манипулятором

      Диаметр 260 мм

      • Стеновой комплект под проект
      • Лаги 1-го и 2-го этажа — брус 200х100. Монтаж балок с шагом 60 см
      • Стропила брус 50х200 обрезные, шаг уст-ки 60см
      • Межвенцовый утеплитель Шелтер (толщина 10 мм)
      • Антисептирование стенового комплекта в летнее время
      • Монтаж сруба дома на узел "Сила"
      • Обвязочный брус 200х200 (подкладной венец)
      • Стеклоизол (гидроизоляция фундамента)
      • Доставка и выгрузка манипулятором

      Диаметр 280 мм

      • Стеновой комплект под проект
      • Лаги 1-го и 2-го этажа — брус 200х100. Монтаж балок с шагом 60 см
      • Стропила брус 50х200 обрезные, шаг уст-ки 60см
      • Межвенцовый утеплитель Шелтер (толщина 10 мм)
      • Антисептирование стенового комплекта в летнее время
      • Монтаж сруба дома на узел "Сила"
      • Обвязочный брус 200х200 (подкладной венец)
      • Стеклоизол (гидроизоляция фундамента)
      • Доставка и выгрузка манипулятором

      Диаметр 220-260 мм

      • Стеновой комплект под проект
      • Лаги 1-го и 2-го этажа — брус 200х100. Монтаж балок с шагом 60 см
      • Стропила брус 50х200 обрезные, шаг уст-ки 60см
      • Межвенцовый утеплитель Шелтер (толщина 10 мм)
      • Антисептирование стенового комплекта в летнее время
      • Монтаж сруба дома на узел "Сила"
      • Обвязочный брус 200х200 (подкладной венец)
      • Стеклоизол (гидроизоляция фундамента)
      • Доставка и выгрузка манипулятором

      Диаметр 240-280 мм

      • Стеновой комплект под проект
      • Лаги 1-го и 2-го этажа — брус 200х100. Монтаж балок с шагом 60 см
      • Стропила брус 50х200 обрезные, шаг уст-ки 60см
      • Межвенцовый утеплитель Шелтер (толщина 10 мм)
      • Антисептирование стенового комплекта в летнее время
      • Монтаж сруба дома на узел "Сила"
      • Обвязочный брус 200х200 (подкладной венец)
      • Стеклоизол (гидроизоляция фундамента)
      • Доставка и выгрузка манипулятором

      Диаметр 280-320 мм

      • Стеновой комплект под проект
      • Лаги 1-го и 2-го этажа — брус 200х100. Монтаж балок с шагом 60 см
      • Стропила брус 50х200 обрезные, шаг уст-ки 60см
      • Межвенцовый утеплитель Шелтер (толщина 10 мм)
      • Антисептирование стенового комплекта в летнее время
      • Монтаж сруба дома на узел "Сила"
      • Обвязочный брус 200х200 (подкладной венец)
      • Стеклоизол (гидроизоляция фундамента)
      • Доставка и выгрузка манипулятором

      Сечение 145х145 мм

      • Стеновой комплект под проект
      • Лаги 1-го и 2-го этажа — брус 200х100 сухие строганные. Монтаж балок с шагом 60 см
      • Стропила брус 50х200 сухие строганные, шаг уст-ки 60см
      • Столбы 200х200 из клееного бруса
      • Межвенцовый утеплитель Шелтер (толщина 10 мм)
      • Монтаж сруба дома на узел "Сила"
      • Обвязочный брус 200х200 (подкладной венец)
      • Стеклоизол (гидроизоляция фундамента)
      • Доставка и выгрузка манипулятором

      Сечение 145х195 мм

      • Стеновой комплект под проект
      • Лаги 1-го и 2-го этажа — брус 200х100 сухие строганные. Монтаж балок с шагом 60 см
      • Стропила брус 50х200 сухие строганные, шаг уст-ки 60см
      • Столбы 200х200 из клееного бруса
      • Межвенцовый утеплитель Шелтер (толщина 10 мм)
      • Монтаж сруба дома на узел "Сила"
      • Обвязочный брус 200х200 (подкладной венец)
      • Стеклоизол (гидроизоляция фундамента)
      • Доставка и выгрузка манипулятором

      Сечение 185х160 мм

      • Стеновой комплект под проект
      • Лаги 1-го и 2-го этажа — брус 200х100 сухие строганные. Монтаж балок с шагом 60 см
      • Стропила брус 50х200 сухие строганные, шаг уст-ки 60см
      • Межвенцовый утеплитель Шелтер (толщина 10 мм)
      • Монтаж сруба дома на узел "Сила"
      • Обвязочный брус 200х200 (подкладной венец)
      • Стеклоизол (гидроизоляция фундамента)
      • Доставка и выгрузка манипулятором

      Сечение 185х202 мм

      • Стеновой комплект под проект
      • Лаги 1-го и 2-го этажа — брус 200х100 сухие строганные. Монтаж балок с шагом 60 см
      • Стропила брус 50х200 сухие строганные, шаг уст-ки 60см
      • Межвенцовый утеплитель Шелтер (толщина 10 мм)
      • Монтаж сруба дома на узел "Сила"
      • Обвязочный брус 200х200 (подкладной венец)
      • Стеклоизол (гидроизоляция фундамента)
      • Доставка и выгрузка манипулятором

      Сечение 185х242 мм

      • Стеновой комплект под проект
      • Лаги 1-го и 2-го этажа — брус 200х100 сухие строганные. Монтаж балок с шагом 60 см
      • Стропила брус 50х200 сухие строганные, шаг уст-ки 60см
      • Межвенцовый утеплитель Шелтер (толщина 10 мм)
      • Монтаж сруба дома на узел "Сила"
      • Обвязочный брус 200х200 (подкладной венец)
      • Стеклоизол (гидроизоляция фундамента)
      • Доставка и выгрузка манипулятором

      Сечение 275х160 мм

      • Стеновой комплект под проект
      • Лаги 1-го и 2-го этажа — брус 200х100 сухие строганные. Монтаж балок с шагом 60 см
      • Стропила брус 50х200 сухие строганные, шаг уст-ки 60см
      • Межвенцовый утеплитель Шелтер (толщина 10 мм)
      • Монтаж сруба дома на узел "Сила"
      • Обвязочный брус 200х200 (подкладной венец)
      • Стеклоизол (гидроизоляция фундамента)
      • Доставка и выгрузка манипулятором

      Сечение 275х202 мм

      • Стеновой комплект под проект
      • Лаги 1-го и 2-го этажа — брус 200х100 сухие строганные. Монтаж балок с шагом 60 см
      • Стропила брус 50х200 сухие строганные, шаг уст-ки 60см
      • Межвенцовый утеплитель Шелтер (толщина 10 мм)
      • Монтаж сруба дома на узел "Сила"
      • Обвязочный брус 200х200 (подкладной венец)
      • Стеклоизол (гидроизоляция фундамента)
      • Доставка и выгрузка манипулятором

      Сечение 275х242 мм

      • Стеновой комплект под проект
      • Лаги 1-го и 2-го этажа — брус 200х100 сухие строганные. Монтаж балок с шагом 60 см
      • Стропила брус 50х200 сухие строганные, шаг уст-ки 60см
      • Межвенцовый утеплитель Шелтер (толщина 10 мм)
      • Монтаж сруба дома на узел "Сила"
      • Обвязочный брус 200х200 (подкладной венец)
      • Стеклоизол (гидроизоляция фундамента)
      • Доставка и выгрузка манипулятором
      Окна

      Окна

      Veka Softline 70 — пятикамерная профильная система класса энергоэффективности А+. Подходит для создания больших площадей остекления и панорамных окон.
      Некоторые характеристики:
      • глубина монтажа — 70 мм;
      • максимальная толщина заполнения (стеклопакета) — 42 мм;
      • коэффициент теплоизоляции — 0,94 м²С/Вт;
      • коэффициент шумоизоляции — до 45 дБ;
      • два контура уплотнения;
      • высота фальца — 21 мм;
      • комбинация «створка + коробка» — 118 мм.
      Кровля

      Временная кровля

      • Материал покрытия: армированная пленка;
      • Обрешетка: доска 100х25;
      • Антисептирования пиломатериала;
      • Скользящие крепления.

      Металлочерепица

      • Металлочерепица “Grand Line” 0,5;
      • Конек, карнизная планка, ветровая планка;
      • Гидроизоляция, кровельная мембрана;
      • Контр обрешетка – брус 50х50 мм;
      • Антисептирования пиломатериала;
      • ПВХ вент. лента;
      • Коньковый аэратор;
      • Крюки для желобов в подарок!

      Мягкая черепица

      • Мягкая черепица многослойная "Shinglas" Кантри;
      • Конек, карнизная планка;
      • Кровельная мастика;
      • Коньковый аэратор;
      • Ветровая планка, капельник карнизный;
      • Подкладочный ковер Anderep
      • Антисептирование пиломатериала;
      • Крюки для желобов в подарок!

      Кликфальц

      • Стропила 50х200 обрешетка, строг. контробршетка;
      • Кликфальц Double Pro Grand Line 0,5 (обычно оцинкованная сталь с полимерным покрытием), где одна сторона оснащена замком, а другая — перфорацией для шурупов;
      • Коньковая, карнизная и торцевая планка;
      • Вентилируемый прогон опорный фальц PRO 35;
      • Шумоизолирующая лента под фальц;
      • Коньковый аэратор;
      • Кровельная мембрана.
      • Пвх вент. лента;
      • Антисептирование материала;
      • Крюки для желобов в подарок!

      Браас

      • Стропила 50х200 обрешетка, строг. контробршетка;
      • Рядовая, коньковая черепица Braas;
      • Боковая универсальная черепица Braas;
      • Половинчатая черепица Франкфурт;
      • Ребристый желобок.
      • Планка примыкания в штробу 60;
      • Аэроэлемент свеса Ch;
      • Опора коньков/хребтового бруска;
      • Кровельная мембрана;
      • Антисептирование материала;
      • Крюки для желобов в подарок!
      Фундамент

      Выберите фундамент выше

      Ленточный фундамент

      • Укладка геотекстиля ТК и устройство террасы;
      • Песчаная подготовка толщиной 200 мм (ТК и террасы);
      • Ростверк размером 400х400 мм под внешними и внутренними несущими стенами, а также террасами + сваи = 1,3 метра через каждые 1,5 метра;
      • Наплавляемая гидроизоляция - внешний контур ростверка под ТК снаружи - вертикально
      • Защитная мембрана - внешний контур ростверка снаружи - вертикально;
      • Обратная засыпка песком;
      • Монолитная плита толщиной 150 мм;
      • Укладка бетона марки М300.

      Плита

      • Планировка участка
      • Разработка котлована под фундамент
      • Ручная доработка грунта
      • Монтаж закладных под инженерные коммуникации
      • Укладка геотекстиля
      • Устройство песчаного основания с вибротрамбовкой
      • Устройство гравийного основания
      • Устройство гидроизоляции
      • Монтаж опалубки
      • Двухслойное армирование с ячейкой 200x200мм
      • Бетонирование М300 t=300

      Железобетонные сваи

      • Пробное забуривание (иследование грунта)
      • Ж/Б сечением 200х200 мм, длина сваи 3 м.
      •  Оголовки 200х200 мм с антикоррозийным покрытием
      •  Монтаж спецтехникой

      Винтовые сваи

      • Выезд для привязки дома к участку и пробы грунта
      • Сваи с антикоррозийным покрытием диаметром 108 мм, толщина стенки 4мм, высота 2,5 м.
      • Оголовки с антикоррозийным покрытием
      • Монтаж.
      Проектирование

      Архитектурный проект для регистрации в БТИ.

      В нашей компании вы можете выбрать готовый проект дома или заказать индивидуальный проект. Если подходящего варианта не найдется, мы разработаем проект с учетом всех ваших требований.

      Проектирование начинается с учета ваших личных предпочтений и потребностей вашей семьи, включая площадь дома, количество этажей и наличие дополнительных помещений. Также учитываются особенности строительства в конкретной местности и предпочтительный архитектурный стиль. На основе этих факторов принимаются решения о фундаменте и материале стен, которые должны быть правильно рассчитаны на местность и климат.

      Выбор перекрытий также зависит от технических аспектов и может включать монолитные плиты, сборные плиты или перекрытия по деревянным балкам. Чтобы избежать ошибок на этом этапе, рекомендуется обратиться к нашим специалистам, которые обладают знаниями в области строительства.

      Доставка

      В расчет на сайте уже включена доставка до Москвы и +200км от МКАД

      CompoundProjectWood

      Описание

      Проект «Солнечный» – вариант брусового дома для небольшой семьи. Это двухэтажное строение площадью 78 кв. м., жилой – 72 кв. м. Имеет удлиненную форму, благодаря чему экономится место на дачном участке. Может использоваться как гостевой дом для обустройства территории загородного дома. На первом этаже терраса, с которой вы попадаете в просторную прихожую, а затем в совмещенную кухню-гостиную. С прихожей открывается вход в просторный санузел и выход на второй этаж. Здесь расположен просторный холл и две спальни. Этот проект можно отнести к классическим вариантам жилых домов, идеально подходящий для дачных участков.

      Фото готового дома


      Проект дома Истра
      Проект дома Истра
      Проект дома Истра
      Проект дома Истра
      Проект дома Истра
      Проект дома Истра
      Проект дома Истра
      Проект дома Истра
      Проект дома Истра
      Проект дома Истра
      Проект дома Истра
      Проект дома Истра
      Проект дома Истра
      Проект дома Истра
      Проект дома Истра
      Проект дома Истра
      Проект дома Истра
      Проект дома Истра
      Проект дома Истра
      Проект дома Истра
      Проект дома Истра
      Проект дома Истра
      Проект дома Истра
      Проект дома Истра
      Проект дома Истра
      Проект дома Истра
      Проект дома Истра
      Проект дома Истра
      Проект дома Истра
      Проект дома Истра
      Проект дома Истра
      Проект дома Истра
      Проект дома Истра
      Проект дома Истра
      Проект дома Истра
      Проект дома Истра

      Хотите заказать такой проект?

      Ответим на
      любые вопросы

      Что вы получите заказывая у нас
      Комплекс работ

      Строительство от фундамента до коммуникации

      Строительство от фундамента до коммуникации
      Отчеты

      Общий чат с командой, фото и видео отчеты

      Отчеты
      Технадзор

      Независимый технадзор на этапе строительства

      Независимый технадзор на этапе строительства
      Цена по договору

      Фиксированная цена после заключения договора

      Фиксированная цена после заключения договора
      Кредит

      Строительство в кредит на выгодных условиях

      Строительство в кредит на выгодных условиях
      Оплата

      Удобная поэтапная оплата в течение строительства

      Удобная поэтапная оплата в течение строительства

      Отзывы наших клиентов

      Лутчак Валентина

      Проект в Чеховском районе деревня Мерлеево

      Довгань Анатолий

      Проект Радуга в Пушкино деревня Цернское

      Тихонов Сергей

      Проект в Раменском районе

      Сушков Владислав

      Рубленное бревно по проекту " Москва"

      Терехова Е.

      Проект дома Тула в Дубровке

      Матвеева О.

      Проект Радуга в Апрелевке

      Подолян Роман

      Проект дома Ветерок в Бисерово

      Агольцова Ирина

      Проект дома Радуга в Раменском

      Тельных Наталья

      Проект дома в Зверево

      Воронова Кира

      Проект дома Симфония в Белозерском

      Грудев Роман

      Проект дома Морозко в селе Хатунь

      Богданов Сергей

      Проект Серпухов в Усадьбе Тишнево

      Гузеева Ирина

      Проект в Дубцах

      Юлия

      Проект “Корсар” в Дмитровском районе

      Екатерина

      Проект из проф. бруса камерной сушки 140х190 Серпухов

      Екатерина

      Дом по традициям русского зодчества, индивидуальный проект предложенный заказчиком

      Галина

      Проект “Резиденция” в Можайске

      Сергей Михайлович

      Проект “Зимняя сказка” и баня “Причуда” в КП “Вотчина клаб”

      Дегаев Максим

      Проект дома Казань в Говейново

      Звоните сейчас!

      +7 (495) 255 08 45

      Или заполните форму и мы ответим на все Ваши вопросы!