Строительство
домов
под ключ

пришлите проект для расчета
Москва info@ideisruba.ru

по всем вопросам

8 800 301-58-38 Заказать звонок

ежедневно с 9:00 до 19:00

пришлите проект для расчета
Москва info@ideisruba.ru

по всем вопросам

8 800 301-58-38 Заказать звонок

ежедневно с 9:00 до 19:00

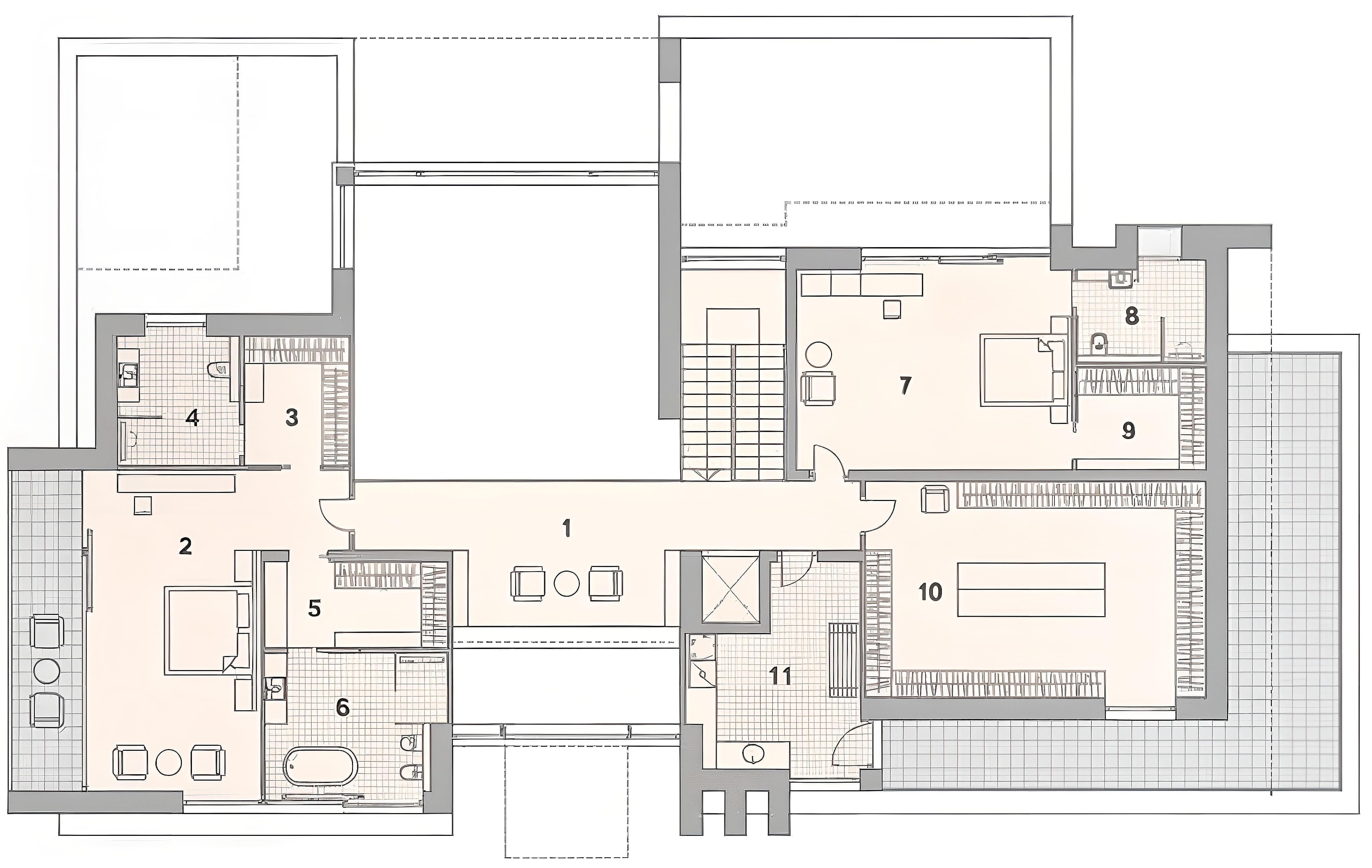
Проект дома Иннополис

Дом из керамоблока (14x15 м) - 320 м2

Площадь

320 м2

Спален

5

Размер

14x15 м

Этажность

2

Планировка

1 этаж Планировка 1 этажа
2 этаж Планировка 2 этажа

Выберите технологию строительства

Время на строительство: 2 месяца

Стоимость от:

Бесплатный выезд специалиста

Подробнее

Планировка

1 этаж Планировка 1 этажа
2 этаж Планировка 2 этажа

Варианты исполнения

Под крышу
  • Фундамент
    info

    Выберите фундамент выше

    Ленточный фундамент

    • Укладка геотекстиля ТК и устройство террасы;
    • Песчаная подготовка толщиной 200 мм (ТК и террасы);
    • Ростверк размером 400х400 мм под внешними и внутренними несущими стенами, а также террасами + сваи = 1,3 метра через каждые 1,5 метра;
    • Наплавляемая гидроизоляция - внешний контур ростверка под ТК снаружи - вертикально
    • Защитная мембрана - внешний контур ростверка снаружи - вертикально;
    • Обратная засыпка песком;
    • Монолитная плита толщиной 150 мм;
    • Укладка бетона марки М300.

    Плита

    • Планировка участка
    • Разработка котлована под фундамент
    • Ручная доработка грунта
    • Монтаж закладных под инженерные коммуникации
    • Укладка геотекстиля
    • Устройство песчаного основания с вибротрамбовкой
    • Устройство гравийного основания
    • Устройство гидроизоляции
    • Монтаж опалубки
    • Двухслойное армирование с ячейкой 200x200мм
    • Бетонирование М300 t=300

    Железобетонные сваи

    • Пробное забуривание (иследование грунта)
    • Ж/Б сечением 200х200 мм, длина сваи 3 м.
    •  Оголовки 200х200 мм с антикоррозийным покрытием
    •  Монтаж спецтехникой

    Винтовые сваи

    • Выезд для привязки дома к участку и пробы грунта
    • Сваи с антикоррозийным покрытием диаметром 108 мм, толщина стенки 4мм, высота 2,5 м.
    • Оголовки с антикоррозийным покрытием
    • Монтаж.

    Выберите фундамент выше

    Ленточный фундамент

    • Укладка геотекстиля ТК и устройство террасы;
    • Песчаная подготовка толщиной 200 мм (ТК и террасы);
    • Ростверк размером 400х400 мм под внешними и внутренними несущими стенами, а также террасами + сваи = 1,3 метра через каждые 1,5 метра;
    • Наплавляемая гидроизоляция - внешний контур ростверка под ТК снаружи - вертикально
    • Защитная мембрана - внешний контур ростверка снаружи - вертикально;
    • Обратная засыпка песком;
    • Монолитная плита толщиной 150 мм;
    • Укладка бетона марки М300.

    Плита

    • Планировка участка
    • Разработка котлована под фундамент
    • Ручная доработка грунта
    • Монтаж закладных под инженерные коммуникации
    • Укладка геотекстиля
    • Устройство песчаного основания с вибротрамбовкой
    • Устройство гравийного основания
    • Устройство гидроизоляции
    • Монтаж опалубки
    • Двухслойное армирование с ячейкой 200x200мм
    • Бетонирование М300 t=300

    Железобетонные сваи

    • Пробное забуривание (иследование грунта)
    • Ж/Б сечением 200х200 мм, длина сваи 3 м.
    •  Оголовки 200х200 мм с антикоррозийным покрытием
    •  Монтаж спецтехникой

    Винтовые сваи

    • Выезд для привязки дома к участку и пробы грунта
    • Сваи с антикоррозийным покрытием диаметром 108 мм, толщина стенки 4мм, высота 2,5 м.
    • Оголовки с антикоррозийным покрытием
    • Монтаж.

    Свайно-ростверковый

    • Планировка участка;
    • Бурение скважин под БНС (буро набивные сваи);
    • Монтаж арматурного каркаса ф12мм;
    • Бетонирование с гидроизоляцией;
    • Земляные работы под песчаное основание с трамбовкой;
    • Распушовка свай под армирование ростверка;
    • Монтаж опалубки.

    Плита

    • Планировка участка
    • Разработка котлована под фундамент
    • Ручная доработка грунта
    • Монтаж закладных под инженерные коммуникации
    • Укладка геотекстиля
    • Устройство песчаного основания с вибротрамбовкой
    • Устройство гравийного основания
    • Устройство гидроизоляции
    • Монтаж опалубки
    • Двухслойное армирование с ячейкой 200x200мм
    • Бетонирование М300 t=300

    Свайно-ростверковый

    • Планировка участка;
    • Бурение скважин под БНС D=300мм (буро набивные сваи);
    • Монтаж арматурного каркаса ф12мм;
    • Бетонирование с гидроизоляцией;
    • Земляные работы под песчаное основание с трамбовкой;
    • Распушовка свай под армирование ростверка;
    • Монтаж опалубки.

    Плита

    • Планировка участка
    • Разработка котлована под фундамент
    • Ручная доработка грунта
    • Монтаж закладных под инженерные коммуникации
    • Укладка геотекстиля
    • Устройство песчаного основания с вибротрамбовкой
    • Устройство гравийного основания
    • Устройство гидроизоляции
    • Монтаж опалубки
    • Двухслойное армирование с ячейкой 200x200мм
    • Бетонирование М300 t=300
  • Балки перекрытия
    info

    Лаги перекрытия 1-го и 2-го этажа

    • Брус сухой строганный 200×100 мм (лаги)
    • Монтаж балок с шагом 60 см по проекту
    • Полная обработка всех пиломатериалов антисептиком перед монтажом
    • Выравнивание по уровню и крепление к опорным конструкциям
    • Контроль горизонтальности и жёсткости каркаса

    Лаги перекрытия 1-го и 2-го этажа

    • Брус обрезной 200×100 мм (лаги)
    • Монтаж балок с шагом 60 см по проекту
    • Полная обработка всех пиломатериалов антисептиком перед монтажом
    • Выравнивание по уровню и крепление к опорным конструкциям
    • Контроль горизонтальности и жёсткости каркаса

    Каркасные перекрытия 1-го и 2-го этажа

    • Брус сухой строганный 200×100 мм (лаги)
    • Монтаж балок с шагом 60 см по проекту
    • Полная обработка всех пиломатериалов антисептиком перед монтажом
    • Выравнивание по уровню и крепление к опорным конструкциям
    • Контроль горизонтальности и жёсткости каркаса
  • Стеновой комплект
    info

    Профилированный брус

    Клеенный брус

    Сечение 145х145 мм

    • Стеновой комплект под проект
    • Столбы 200х200 из клееного бруса
    • Межвенцовый утеплитель Шелтер (толщина 10 мм)
    • Монтаж сруба дома на узел "Сила"
    • Обвязочный брус 200х200 (подкладной венец)
    • Стеклоизол (гидроизоляция фундамента)
    • Доставка и выгрузка манипулятором

    Сечение 145х195 мм

    • Стеновой комплект под проект
    • Столбы 200х200 из клееного бруса
    • Межвенцовый утеплитель Шелтер (толщина 10 мм)
    • Монтаж сруба дома на узел "Сила"
    • Обвязочный брус 200х200 (подкладной венец)
    • Стеклоизол (гидроизоляция фундамента)
    • Доставка и выгрузка манипулятором

    Сечение 185х160 мм

    • Стеновой комплект под проект
    • Межвенцовый утеплитель Шелтер (толщина 10 мм)
    • Монтаж сруба дома на узел "Сила"
    • Обвязочный брус 200х200 (подкладной венец)
    • Стеклоизол (гидроизоляция фундамента)
    • Доставка и выгрузка манипулятором

    Сечение 185х202 мм

    • Стеновой комплект под проект
    • Межвенцовый утеплитель Шелтер (толщина 10 мм)
    • Монтаж сруба дома на узел "Сила"
    • Обвязочный брус 200х200 (подкладной венец)
    • Стеклоизол (гидроизоляция фундамента)
    • Доставка и выгрузка манипулятором

    Сечение 185х242 мм

    • Стеновой комплект под проект
    • Межвенцовый утеплитель Шелтер (толщина 10 мм)
    • Монтаж сруба дома на узел "Сила"
    • Обвязочный брус 200х200 (подкладной венец)
    • Стеклоизол (гидроизоляция фундамента)
    • Доставка и выгрузка манипулятором

    Сечение 275х160 мм

    • Стеновой комплект под проект
    • Межвенцовый утеплитель Шелтер (толщина 10 мм)
    • Монтаж сруба дома на узел "Сила"
    • Обвязочный брус 200х200 (подкладной венец)
    • Стеклоизол (гидроизоляция фундамента)
    • Доставка и выгрузка манипулятором

    Сечение 275х202 мм

    • Стеновой комплект под проект
    • Межвенцовый утеплитель Шелтер (толщина 10 мм)
    • Монтаж сруба дома на узел "Сила"
    • Обвязочный брус 200х200 (подкладной венец)
    • Стеклоизол (гидроизоляция фундамента)
    • Доставка и выгрузка манипулятором

    Сечение 275х242 мм

    • Стеновой комплект под проект
    • Межвенцовый утеплитель Шелтер (толщина 10 мм)
    • Монтаж сруба дома на узел "Сила"
    • Обвязочный брус 200х200 (подкладной венец)
    • Стеклоизол (гидроизоляция фундамента)
    • Доставка и выгрузка манипулятором

    Оцилиндрованное бревно

    Рубленное бревно

    Диаметр 200 мм

    • Стеновой комплект под проект
    • Лаги 1-го и 2-го этажа — брус 200х100. Монтаж балок с шагом 60 см
    • Стропила брус 50х200 обрезные, шаг уст-ки 60см
    • Межвенцовый утеплитель Шелтер (толщина 10 мм)
    • Антисептирование стенового комплекта в летнее время
    • Монтаж сруба дома на узел "Сила"
    • Обвязочный брус 200х200 (подкладной венец)
    • Стеклоизол (гидроизоляция фундамента)
    • Доставка и выгрузка манипулятором

    Диаметр 220 мм

    • Стеновой комплект под проект
    • Лаги 1-го и 2-го этажа — брус 200х100. Монтаж балок с шагом 60 см
    • Стропила брус 50х200 обрезные, шаг уст-ки 60см
    • Межвенцовый утеплитель Шелтер (толщина 10 мм)
    • Антисептирование стенового комплекта в летнее время
    • Монтаж сруба дома на узел "Сила"
    • Обвязочный брус 200х200 (подкладной венец)
    • Стеклоизол (гидроизоляция фундамента)
    • Доставка и выгрузка манипулятором

    Диаметр 240 мм

    • Стеновой комплект под проект
    • Лаги 1-го и 2-го этажа — брус 200х100. Монтаж балок с шагом 60 см
    • Стропила брус 50х200 обрезные, шаг уст-ки 60см
    • Межвенцовый утеплитель Шелтер (толщина 10 мм)
    • Антисептирование стенового комплекта в летнее время
    • Монтаж сруба дома на узел "Сила"
    • Обвязочный брус 200х200 (подкладной венец)
    • Стеклоизол (гидроизоляция фундамента)
    • Доставка и выгрузка манипулятором

    Диаметр 260 мм

    • Стеновой комплект под проект
    • Лаги 1-го и 2-го этажа — брус 200х100. Монтаж балок с шагом 60 см
    • Стропила брус 50х200 обрезные, шаг уст-ки 60см
    • Межвенцовый утеплитель Шелтер (толщина 10 мм)
    • Антисептирование стенового комплекта в летнее время
    • Монтаж сруба дома на узел "Сила"
    • Обвязочный брус 200х200 (подкладной венец)
    • Стеклоизол (гидроизоляция фундамента)
    • Доставка и выгрузка манипулятором

    Диаметр 280 мм

    • Стеновой комплект под проект
    • Лаги 1-го и 2-го этажа — брус 200х100. Монтаж балок с шагом 60 см
    • Стропила брус 50х200 обрезные, шаг уст-ки 60см
    • Межвенцовый утеплитель Шелтер (толщина 10 мм)
    • Антисептирование стенового комплекта в летнее время
    • Монтаж сруба дома на узел "Сила"
    • Обвязочный брус 200х200 (подкладной венец)
    • Стеклоизол (гидроизоляция фундамента)
    • Доставка и выгрузка манипулятором

    Диаметр 220-260 мм

    • Стеновой комплект под проект
    • Лаги 1-го и 2-го этажа — брус 200х100. Монтаж балок с шагом 60 см
    • Стропила брус 50х200 обрезные, шаг уст-ки 60см
    • Межвенцовый утеплитель Шелтер (толщина 10 мм)
    • Антисептирование стенового комплекта в летнее время
    • Монтаж сруба дома на узел "Сила"
    • Обвязочный брус 200х200 (подкладной венец)
    • Стеклоизол (гидроизоляция фундамента)
    • Доставка и выгрузка манипулятором

    Диаметр 240-280 мм

    • Стеновой комплект под проект
    • Лаги 1-го и 2-го этажа — брус 200х100. Монтаж балок с шагом 60 см
    • Стропила брус 50х200 обрезные, шаг уст-ки 60см
    • Межвенцовый утеплитель Шелтер (толщина 10 мм)
    • Антисептирование стенового комплекта в летнее время
    • Монтаж сруба дома на узел "Сила"
    • Обвязочный брус 200х200 (подкладной венец)
    • Стеклоизол (гидроизоляция фундамента)
    • Доставка и выгрузка манипулятором

    Диаметр 280-320 мм

    • Стеновой комплект под проект
    • Лаги 1-го и 2-го этажа — брус 200х100. Монтаж балок с шагом 60 см
    • Стропила брус 50х200 обрезные, шаг уст-ки 60см
    • Межвенцовый утеплитель Шелтер (толщина 10 мм)
    • Антисептирование стенового комплекта в летнее время
    • Монтаж сруба дома на узел "Сила"
    • Обвязочный брус 200х200 (подкладной венец)
    • Стеклоизол (гидроизоляция фундамента)
    • Доставка и выгрузка манипулятором
  • Стропильная система
    info

    Стропильная система

    • Брус сухой строганный 50×200 мм (стропила)
    • Установка с шагом 60 см по проекту кровли
    • Полная обработка всех пиломатериалов антисептиком перед монтажом
    • Сборка каркаса с обеспечением уклона и жёсткости конструкции
    • Крепление к мауэрлату и коньковому брусу
    • Контроль геометрии и горизонтальности элементов

    Стропильная система

    • Брус обрезной 50×200 мм (стропила)
    • Установка с шагом 60 см по проекту кровли
    • Полная обработка всех пиломатериалов антисептиком перед монтажом
    • Подгонка и подрезка элементов на объекте при необходимости
    • Сборка каркаса с обеспечением уклона и жёсткости конструкции
    • Крепление к мауэрлату и коньковому брусу
    • Контроль геометрии и горизонтальности элементов
  • Кровля
    info

    Временная кровля

    • Материал покрытия: армированная пленка;
    • Обрешетка: доска 100х25;
    • Антисептирования пиломатериала;
    • Скользящие крепления.

    Металлочерепица

    • Металлочерепица “Grand Line” 0,5;
    • Конек, карнизная планка, ветровая планка;
    • Гидроизоляция, кровельная мембрана;
    • Контр обрешетка – брус 50х50 мм;
    • Антисептирования пиломатериала;
    • ПВХ вент. лента;
    • Коньковый аэратор;
    • Крюки для желобов в подарок!

    Мягкая черепица

    • Мягкая черепица многослойная "Shinglas" Кантри;
    • Конек, карнизная планка;
    • Кровельная мастика;
    • Коньковый аэратор;
    • Ветровая планка, капельник карнизный;
    • Подкладочный ковер Anderep
    • Антисептирование пиломатериала;
    • Крюки для желобов в подарок!

    Кликфальц

    • Кликфальц Double Pro Grand Line 0,5 (обычно оцинкованная сталь с полимерным покрытием), где одна сторона оснащена замком, а другая — перфорацией для шурупов;
    • Коньковая, карнизная и торцевая планка;
    • Вентилируемый прогон опорный фальц PRO 35;
    • Шумоизолирующая лента под фальц;
    • Коньковый аэратор;
    • Кровельная мембрана.
    • Пвх вент. лента;
    • Антисептирование материала;
    • Крюки для желобов в подарок!

    Браас

    • Рядовая, коньковая черепица Braas;
    • Боковая универсальная черепица Braas;
    • Половинчатая черепица Франкфурт;
    • Ребристый желобок.
    • Планка примыкания в штробу 60;
    • Аэроэлемент свеса Ch;
    • Опора коньков/хребтового бруска;
    • Кровельная мембрана;
    • Антисептирование материала;
    • Крюки для желобов в подарок!

    Временная кровля

    • Материал покрытия: армированная пленка;
    • Обрешетка: доска 100х25;
    • Антисептирования пиломатериала;
    • Скользящие крепления.

    Металлочерепица

    • Металлочерепица “Grand Line” 0,5;
    • Конек, карнизная планка, ветровая планка;
    • Гидроизоляция, кровельная мембрана;
    • Контр обрешетка – брус 50х50 мм;
    • Антисептирования пиломатериала;
    • ПВХ вент. лента;
    • Коньковый аэратор;
    • Крюки для желобов в подарок!

    Мягкая черепица

    • Мягкая черепица многослойная "Shinglas" Кантри;
    • Конек, карнизная планка;
    • Кровельная мастика;
    • Коньковый аэратор;
    • Ветровая планка, капельник карнизный;
    • Подкладочный ковер Anderep
    • Антисептирование пиломатериала;
    • Крюки для желобов в подарок!

    Кликфальц

    • Кликфальц Double Pro Grand Line 0,5 (обычно оцинкованная сталь с полимерным покрытием), где одна сторона оснащена замком, а другая — перфорацией для шурупов;
    • Коньковая, карнизная и торцевая планка;
    • Вентилируемый прогон опорный фальц PRO 35;
    • Шумоизолирующая лента под фальц;
    • Коньковый аэратор;
    • Кровельная мембрана.
    • Пвх вент. лента;
    • Антисептирование материала;
    • Крюки для желобов в подарок!

    Браас

    • Рядовая, коньковая черепица Braas;
    • Боковая универсальная черепица Braas;
    • Половинчатая черепица Франкфурт;
    • Ребристый желобок.
    • Планка примыкания в штробу 60;
    • Аэроэлемент свеса Ch;
    • Опора коньков/хребтового бруска;
    • Кровельная мембрана;
    • Антисептирование материала;
    • Крюки для желобов в подарок!

    Металлочерепица

    • Металлочерепица “Grand Line” 0,5;
    • Стропила – доска 50х200 мм;
    • Конек, карнизная планка, ветровая планка;
    • Гидроизоляция, кровельная мембрана;
    • Контр обрешетка – брус 50х50 мм.

    Мягкая черепица

    • Мягкая черепица "Shinglas" Кантри;
    • Конек, карнизная планка;
    • Коньковый аэратор;
    • Ветровая планка;
    • Капельник карнизный.

    Металлочерепица

    • Металлочерепица “Grand Line” 0,5;
    • Стропила – доска 50х200 мм;
    • Конек, карнизная планка, ветровая планка;
    • Гидроизоляция, кровельная мембрана;
    • Контр обрешетка – брус 50х50 мм.

    Мягкая черепица

    • Мягкая черепица "Shinglas" Кантри;
    • Конек, карнизная планка;
    • Коньковый аэратор;
    • Ветровая планка;
    • Капельник карнизный.
  • Обсадные короба

    Монтаж обсады

    • Доска сухая строганная 45×195 мм
    • Брусок строганный 50×50 мм
    • Установка обсадных коробов по периметру окон
    • Подгонка и крепление элементов без зазоров
    • Утепление проемов "Шелтером"
    • Обработка торцов антисептиком
    • Проверка геометрии и горизонтальности конструкции

    Монтаж обсады

    • Доска сухая строганная 45×195 мм
    • Брусок строганный 50×50 мм
    • Установка обсадных коробов по периметру окон
    • Подгонка и крепление элементов без зазоров
    • Утепление проемов "Шелтером"
    • Обработка торцов антисептиком
    • Проверка геометрии и горизонтальности конструкции
  • Окна, двери

    Окна ПВХ VEKA WHS 72

    • 5-камерный профиль WHS 72
    • 2-камерное энергосберегающее стеклопакет толщиной 40 мм
    • Фурнитура MACO ECO — надёжная и долговечная
    • Гарантия 5 лет на профиль и фурнитуру

    Двери

    • Индивидуальные деревянные

    Окна ПВХ VEKA WHS 72

    • 5-камерный профиль WHS 72
    • 2-камерное энергосберегающее стеклопакет толщиной 40 мм
    • Фурнитура MACO ECO — надёжная и долговечная
    • Гарантия 5 лет на профиль и фурнитуру

    Двери

    • Индивидуальные деревянные
  • Утепление

    Утепление кровли, потолка и пола

    • Утеплитель UMAXTEX Termo Универсальная плита смарт 200 мм
    • Пароизоляция FAKRO E-Top 190 — надёжная защита от конденсата
    • Диффузная мембрана EUROTOP N15 FAKRO — вывод пара и защита от ветра
    • Контробрешётка: брусок 50×50 мм (кровля), 20×40 мм (потолок/пол) — для вентзазора
    • Обрешётка: доска строганная 45×90 мм (пол), обрезная 25×100×6000 мм (потолок/кровля)
    • Слои утеплителя укладываются со смещением швов — исключаются «мостики холода»

    Утепление кровли, потолка и пола

    • Утеплитель UMAXTEX Termo Универсальная плита смарт 200 мм
    • Пароизоляция FAKRO E-Top 190 — надёжная защита от конденсата
    • Диффузная мембрана EUROTOP N15 FAKRO — вывод пара и защита от ветра
    • Контробрешётка: брусок 50×50 мм (кровля), 20×40 мм (потолок/пол) — для вентзазора
    • Обрешётка: доска строганная 45×90 мм (пол), обрезная 25×100×6000 мм (потолок/кровля)
    • Слои утеплителя укладываются со смещением швов — исключаются «мостики холода»
  • Инженерные системы

    Инженерные системы

    • Электрика, водоснабжение, канализация — скрытая разводка с учётом усадки сруба
    • Трубы из PEX/металлопластика, канализация — ПВХ, электрика — в гофре по СП и ПУЭ
    • Подготовка под отопление: котёл, радиаторы или тёплый пол (по проекту)
    • Вентиляция: естественная или приточно-вытяжная с рекуперацией
    • Подключение к внешним сетям — по техусловиям заказчика

    Инженерные системы

    • Электрика, водоснабжение, канализация — скрытая разводка с учётом усадки сруба
    • Трубы из PEX/металлопластика, канализация — ПВХ, электрика — в гофре по СП и ПУЭ
    • Подготовка под отопление: котёл, радиаторы или тёплый пол (по проекту)
    • Вентиляция: естественная или приточно-вытяжная с рекуперацией
    • Подключение к внешним сетям — по техусловиям заказчика
  • Покраска

    Покраска внутренних и внешних стен

    • Грунтовка внешних стен: защитное грунт-масло GNature
    • Внешнее покрытие: Защитное масло GNature с колеровкой под заказ
    • Внутреннее покрытие: Лазурь с пчелиным воском GNature с колеровкой под заказ
    • Нанесение в 2 слоя для глубокой защиты и насыщенного цвета
    • Обработка всех поверхностей — стены и торцы бруса
    • Экологичные составы на натуральной основе — безопасны для дома

    Покраска внутренних и внешних стен из бревна

    • Грунтовка внешних стен: защитное грунт-масло GNature
    • Внешнее покрытие: Защитное масло GNature с колеровкой под заказ
    • Внутреннее покрытие: Лазурь с пчелиным воском GNature с колеровкой под заказ
    • Нанесение в 2 слоя для глубокой защиты и насыщенного цвета
    • Обработка всех поверхностей — стены и торцы бревна
    • Монтаж тёплого шва герметиком
    • Экологичные составы на натуральной основе — безопасны для дома
от
Теплый контур
  • Фундамент
    info
  • Балки перекрытия
    info
  • Стеновой комплект
    info
  • Стропильная система
    info
  • Кровля
    info
  • Обсадные короба
    info
  • Окна, двери
    info
  • Утепление
    info
  • Инженерные системы
  • Покраска
от 3 840 000
Под ключ
  • Фундамент
    info
  • Балки перекрытия
    info
  • Стеновой комплект
    info
  • Стропильная система
    info
  • Кровля
    info
  • Обсадные короба
    info
  • Окна, двери
    info
  • Утепление
    info
  • Инженерные системы
    info
  • Покраска
    info
Цена по запросу

Комплектация Дома

    Фундамент

    Свайно-ростверковый

    • Планировка участка;
    • Бурение скважин под БНС (буро набивные сваи);
    • Монтаж арматурного каркаса ф12мм;
    • Бетонирование с гидроизоляцией;
    • Земляные работы под песчаное основание с трамбовкой;
    • Распушовка свай под армирование ростверка;
    • Монтаж опалубки.

    Плита

    • Планировка участка
    • Разработка котлована под фундамент
    • Ручная доработка грунта
    • Монтаж закладных под инженерные коммуникации
    • Укладка геотекстиля
    • Устройство песчаного основания с вибротрамбовкой
    • Устройство гравийного основания
    • Устройство гидроизоляции
    • Монтаж опалубки
    • Двухслойное армирование с ячейкой 200x200мм
    • Бетонирование М300 t=300
    Стены

    Стены

    • Наружные стены - керамические поризованные блоки толщиной 440 мм;
    • Внутренние несущие стены - керамические поризованные блоки толщиной 300 мм;
    • Перегородки - керамические поризованные блоки толщиной 115 мм;
    • Перемычки - монолитные железобетонные;
    • Монолитные пояса высотой 200 мм под межэтажное перекрытие и мауэрлат по всем наружным и внутренним стенам;
    • Утепление монолитных поясов наружных стен пенополистиролом толщиной 100 мм. 
    Кровля

    Металлочерепица

    • Металлочерепица “Grand Line” 0,5;
    • Стропила – доска 50х200 мм;
    • Конек, карнизная планка, ветровая планка;
    • Гидроизоляция, кровельная мембрана;
    • Контр обрешетка – брус 50х50 мм.

    Мягкая черепица

    • Мягкая черепица "Shinglas" Кантри;
    • Конек, карнизная планка;
    • Коньковый аэратор;
    • Ветровая планка;
    • Капельник карнизный.
    Межэтажное перекрытие

    Межэтажное перекрытие

    • Пустотные плиты перекрытия (Серия 1.141-1);
    • Раствор для монтажа плит;
    • Проволока катанка для монтажа плит.
    Окна

    Окна Veka

    • Профиль: Softline 82. 
    • Количество камер: 7 или 6. 
    • Стеклопакет: двухкамерный энергосберегающий. 
    • Фурнитура: поворотно-откидная, противовзломная. 
    • Цвет: белый или цветной. 

    Технические характеристики:

    • Монтажная ширина: 82 мм. 
    • Толщина стеклопакета: от 24 до 52 мм. 
    • Сопротивление теплопередаче (с установленным армированием): 1,06 м²×°С/Вт. 
    • Высота фальца: 25 мм. 
    • Материал уплотнений: АРТК, силикон, ТРЕ (коэкструдированный). 
    • Количество контуров уплотнения: 3.

    Окна «Века» обладают долговечностью, большой механической прочностью, устойчивостью к суровому климату. Они защищают помещение от влаги, пыли и выхлопных газов.

    Проектирование

    Готовый или индивидуальный проект

    В нашей компании вы можете выбрать готовый проект дома или заказать индивидуальный проект. Если подходящего варианта не найдется, мы разработаем проект с учетом всех ваших требований.

    Проектирование начинается с учета ваших личных предпочтений и потребностей вашей семьи, включая площадь дома, количество этажей и наличие дополнительных помещений. Также учитываются особенности строительства в конкретной местности и предпочтительный архитектурный стиль. На основе этих факторов принимаются решения о фундаменте и материале стен, которые должны быть правильно рассчитаны на местность и климат.

    Выбор перекрытий также зависит от технических аспектов и может включать монолитные плиты, сборные плиты или перекрытия по деревянным балкам. Чтобы избежать ошибок на этом этапе, рекомендуется обратиться к нашим специалистам, которые обладают знаниями в области строительства.

      Фундамент

      Свайно-ростверковый

      • Планировка участка;
      • Бурение скважин под БНС D=300мм (буро набивные сваи);
      • Монтаж арматурного каркаса ф12мм;
      • Бетонирование с гидроизоляцией;
      • Земляные работы под песчаное основание с трамбовкой;
      • Распушовка свай под армирование ростверка;
      • Монтаж опалубки.

      Плита

      • Планировка участка
      • Разработка котлована под фундамент
      • Ручная доработка грунта
      • Монтаж закладных под инженерные коммуникации
      • Укладка геотекстиля
      • Устройство песчаного основания с вибротрамбовкой
      • Устройство гравийного основания
      • Устройство гидроизоляции
      • Монтаж опалубки
      • Двухслойное армирование с ячейкой 200x200мм
      • Бетонирование М300 t=300
      Стены

      Стены

      • Внешние стены Газобетонные блоки Bonolit t=300;
      • Внутренние несущие стены Газобетонные блоки Bonolit t=200;
      • Перегородки Газобетонные блоки Bonolit t=100;
      • Оригинальный клей Bonolit;
      • Перемычки - монолитные ж/б;
      • Монолитные пояса h=200 мм под м/э перекрытие и мауэрлат по всем наружным и внутренним стенам;
      • Утепление монолитных поясов и перемычек наружных стен 50 мм пенополистирол.
      Кровля

      Металлочерепица

      • Металлочерепица “Grand Line” 0,5;
      • Стропила – доска 50х200 мм;
      • Конек, карнизная планка, ветровая планка;
      • Гидроизоляция, кровельная мембрана;
      • Контр обрешетка – брус 50х50 мм.

      Мягкая черепица

      • Мягкая черепица "Shinglas" Кантри;
      • Конек, карнизная планка;
      • Коньковый аэратор;
      • Ветровая планка;
      • Капельник карнизный.
      Межэтажное перекрытие

      Межэтажное перекрытие

      • Пустотные плиты перекрытия (Серия 1.141-1);
      • Раствор для монтажа плит;
      • Проволока катанка для монтажа плит.
      Окна

      Окна Veka

      • Профиль: Softline 82. 
      • Количество камер: 7 или 6. 
      • Стеклопакет: двухкамерный энергосберегающий. 
      • Фурнитура: поворотно-откидная, противовзломная. 
      • Цвет: белый или цветной. 

      Технические характеристики:

      • Монтажная ширина: 82 мм. 
      • Толщина стеклопакета: от 24 до 52 мм. 
      • Сопротивление теплопередаче (с установленным армированием): 1,06 м²×°С/Вт. 
      • Высота фальца: 25 мм. 
      • Материал уплотнений: АРТК, силикон, ТРЕ (коэкструдированный). 
      • Количество контуров уплотнения: 3.

      Окна «Века» обладают долговечностью, большой механической прочностью, устойчивостью к суровому климату. Они защищают помещение от влаги, пыли и выхлопных газов.

      Проектирование

      Готовый или индивидуальный проект

      В нашей компании вы можете выбрать готовый проект дома или заказать индивидуальный проект. Если подходящего варианта не найдется, мы разработаем проект с учетом всех ваших требований.

      Проектирование начинается с учета ваших личных предпочтений и потребностей вашей семьи, включая площадь дома, количество этажей и наличие дополнительных помещений. Также учитываются особенности строительства в конкретной местности и предпочтительный архитектурный стиль. На основе этих факторов принимаются решения о фундаменте и материале стен, которые должны быть правильно рассчитаны на местность и климат.

      Выбор перекрытий также зависит от технических аспектов и может включать монолитные плиты, сборные плиты или перекрытия по деревянным балкам. Чтобы избежать ошибок на этом этапе, рекомендуется обратиться к нашим специалистам, которые обладают знаниями в области строительства.

      CompoundProjectCeramic

      Описание

      Фото готового дома


      Здесь пока нет фотографий

      Хотите заказать такой проект?

      Ответим на
      любые вопросы

      Что вы получите заказывая у нас
      Комплекс работ

      Строительство от фундамента до коммуникации

      Строительство от фундамента до коммуникации
      Отчеты

      Общий чат с командой, фото и видео отчеты

      Отчеты
      Технадзор

      Независимый технадзор на этапе строительства

      Независимый технадзор на этапе строительства
      Цена по договору

      Фиксированная цена после заключения договора

      Фиксированная цена после заключения договора
      Кредит

      Строительство в кредит на выгодных условиях

      Строительство в кредит на выгодных условиях
      Оплата

      Удобная поэтапная оплата в течение строительства

      Удобная поэтапная оплата в течение строительства

      Отзывы наших клиентов

      Лутчак Валентина

      Проект в Чеховском районе деревня Мерлеево

      Довгань Анатолий

      Проект Радуга в Пушкино деревня Цернское

      Тихонов Сергей

      Проект в Раменском районе

      Сушков Владислав

      Рубленное бревно по проекту " Москва"

      Терехова Е.

      Проект дома Тула в Дубровке

      Матвеева О.

      Проект Радуга в Апрелевке

      Подолян Роман

      Проект дома Ветерок в Бисерово

      Агольцова Ирина

      Проект дома Радуга в Раменском

      Тельных Наталья

      Проект дома в Зверево

      Воронова Кира

      Проект дома Симфония в Белозерском

      Грудев Роман

      Проект дома Морозко в селе Хатунь

      Богданов Сергей

      Проект Серпухов в Усадьбе Тишнево

      Гузеева Ирина

      Проект в Дубцах

      Юлия

      Проект “Корсар” в Дмитровском районе

      Екатерина

      Проект из проф. бруса камерной сушки 140х190 Серпухов

      Екатерина

      Дом по традициям русского зодчества, индивидуальный проект предложенный заказчиком

      Галина

      Проект “Резиденция” в Можайске

      Сергей Михайлович

      Проект “Зимняя сказка” и баня “Причуда” в КП “Вотчина клаб”

      Дегаев Максим

      Проект дома Казань в Говейново

      Звоните сейчас!

      +7 (495) 255 08 45

      Или заполните форму и мы ответим на все Ваши вопросы!